LogoLogo TaglineLogo Tagline
Loading...
Plan 70637MK

Exquisite Country Ranch Home with Detached Garage and Shop - 2191 Sq Ft

Heated S.F.
2,191
Beds
3
Baths
2.5+
Stories
1
Cars
2

Floor Plan

Plan 70637MK

Main Level
Main Level

Plan 70637MK

M-F 9am-5pm EST |

1-203-761-8500

Main Level

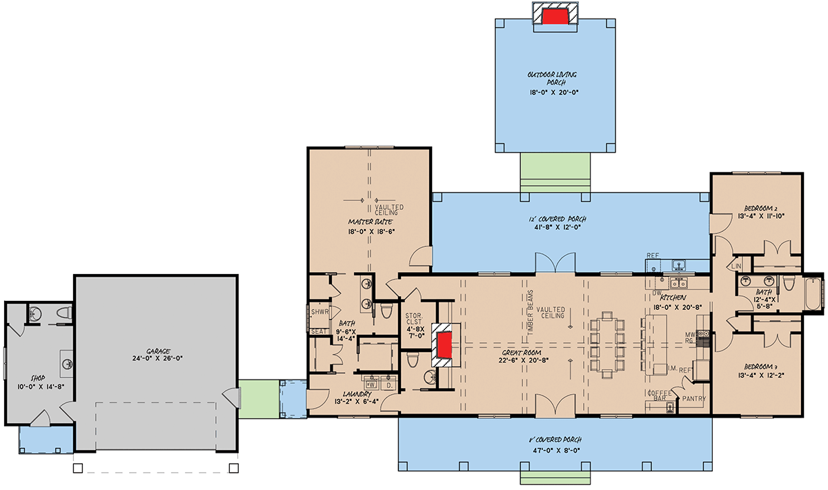
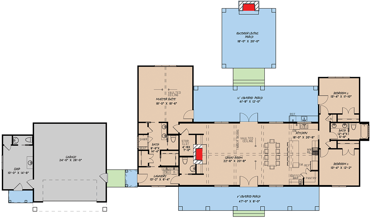
Plan 70637MK: Exquisite Country Ranch Home with Detached Garage and Shop - 2191 Sq Ft - Floor Plan - Main Level - Country, Farmhouse, Ranch

Plan Details

  • This exquisite, country ranch home features ample outdoor living space, complete with an outdoor kitchen and fireplace. The detached, 2-car garage includes a shop with a powder bath and utility sink.
  • French doors in the center of the front elevation serve as the formal entry, and grant access to the generously-sized, open floor plan, which consists of the great room, dining area, and kitchen.
  • Exposed beams support the vaulted ceiling above the shared living spaces, offering a rustic and elegant touch. The massive, kitchen island provides seating for casual meals, and the corner pantry neighbors a coffee bar.
  • The privately-situated, master suite boasts a vaulted ceiling and access to the back porch. The en suite includes 4 fixtures, multiple closets, and access to the laundry room.
  • Bedrooms 2 and 3 occupy the opposite side of the home, and are separated by a compartmentalized bath.

What's Included

  • Foundation Plan (1/4″ or 1/2″ = 1′)
  • Floor Plans (1/4″= 1′)
  • Set of Elevations (1/4″= 1′)
  • Miscellaneous Details (3/4″ = 1′)
  • Roof Overview Plan (1/4"=1")
  • An electrical diagram showing a Birdseye view of rooms with lights, fans to switches

What's Not Included

  • Architectural or Engineering Stamp - handled locally if required
  • Site Plan - handled locally when required
  • Mechanical Drawings (location of heating and air equipment and duct work) - your subcontractors handle this
  • Plumbing Drawings (drawings showing the actual plumbing pipe sizes and locations) - your subcontractors handle this
  • Energy calculations - handled locally when required

Starting at

Loading...
Price Match Guarantee
What's included?

FORMAT & LICENSE

Choose an option

$0

Not sure what to choose?

Pointer link icon

FOUNDATION

Choose an option

+$0

OPTIONS

Choose Additional Options

+$0

Loading...

Modify this Plan

Receive a free modification quote within 3 business days.

Loading...

Start with a Cost Report

Calculate the cost to build & furnish your home.

Loading...
Loading...

Square Footage Breakdown

Total Heated Area

2,191 sq. ft.

1st Floor

2,191 sq. ft.

Porch, Combined

1,290 sq. ft.

Storage

193 sq. ft.

Beds/Baths

Bedrooms

3

Full bathrooms

2

Half bathrooms

2

Foundation Type

Standard Foundations

Crawl, Slab

Exterior Walls

Exterior Walls

2x4

Optional Type(s)

2x6

Dimensions

Width

81' 4"

Depth

67' 8"

Max Ridge Height

24' 0"

Garage

Type

Attached

Area

658 sq. ft.

Count

2 Cars

Entry Location

Front

Ceiling Heights

First Floor

9'

Roof Details

Primary Pitch

8 on 12

Framing Type

Stick

Architectural Style

Country

Square Footage Breakdown

Total Heated Area

2,191 sq. ft.

1st Floor

2,191 sq. ft.

Porch, Combined

1,290 sq. ft.

Storage

193 sq. ft.

Beds/Baths

Bedrooms

3

Full bathrooms

2

Half bathrooms

2

Foundation Type

Standard Foundations

Crawl, Slab

Exterior Walls

Exterior Walls

2x4

Optional Type(s)

2x6

Dimensions

Width

81' 4"

Depth

67' 8"

Max Ridge Height

24' 0"

Garage

Type

Attached

Area

658 sq. ft.

Count

2 Cars

Entry Location

Front

Ceiling Heights

First Floor

9'

Roof Details

Primary Pitch

8 on 12

Framing Type

Stick

Architectural Style

* Please note that all sale prices and promotions featured on our website are subject to change without prior notice. While we strive to provide accurate and up-to-date information, occasional discrepancies may occur due to factors beyond our control. We encourage you to verify all details, including pricing and availability, before making any purchase. Exclusions or restrictions may apply to specific promotions. We reserve the right to modify or cancel any sale at our discretion. Thank you for your understanding and happy shopping!Let's go back to the top.