

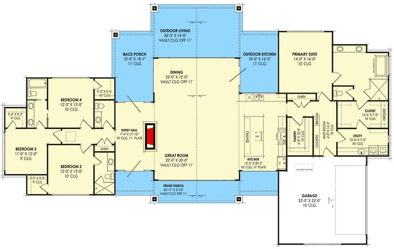
Total Heated Area
2,897 sq. ft.
1st Floor
2,897 sq. ft.
Porch, Front
265 sq. ft.
Porch, Rear
691 sq. ft.
Porch, Combined
956 sq. ft.
Bedrooms
4
Full bathrooms
3
Half bathrooms
1
Standard Foundations
Monolithic Slab
Exterior Walls
2x4
Optional Type(s)
2x6
Width
102' 7"
Depth
63' 6"
Max Ridge Height
20' 9"
Type
Attached, Standard
Area
540 sq. ft.
Count
2 Cars
Entry Location
Side
First Floor
10'
Primary Pitch
9 on 12
Secondary Pitch
6 on 12
Framing Type
Stick Or Truss
Total Heated Area
2,897 sq. ft.
1st Floor
2,897 sq. ft.
Porch, Front
265 sq. ft.
Porch, Rear
691 sq. ft.
Porch, Combined
956 sq. ft.
Bedrooms
4
Full bathrooms
3
Half bathrooms
1
Standard Foundations
Monolithic Slab
Exterior Walls
2x4
Optional Type(s)
2x6
Width
102' 7"
Depth
63' 6"
Max Ridge Height
20' 9"
Type
Attached, Standard
Area
540 sq. ft.
Count
2 Cars
Entry Location
Side
First Floor
10'
Primary Pitch
9 on 12
Secondary Pitch
6 on 12
Framing Type
Stick Or Truss