



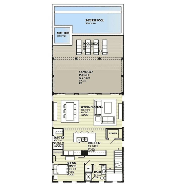
Total Heated Area
2,810 sq. ft.
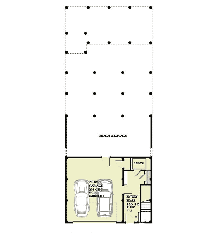
Lower Level
250 sq. ft.
1st Floor
1,280 sq. ft.
2nd Floor
1,280 sq. ft.
Bonus
685 sq. ft.
Bedrooms
3 or 4
Full bathrooms
3
Standard Foundations
Slab
Exterior Walls
2x6
Width
32' 0"
Depth
56' 0"
Max Ridge Height
44' 5"
Type
Drive Under
Area
482 sq. ft.
Count
2 Cars
Entry Location
Front
First Floor
10'
Second Floor
9'
Total Heated Area
2,810 sq. ft.
Lower Level
250 sq. ft.
1st Floor
1,280 sq. ft.
2nd Floor
1,280 sq. ft.
Bonus
685 sq. ft.
Bedrooms
3 or 4
Full bathrooms
3
Standard Foundations
Slab
Exterior Walls
2x6
Width
32' 0"
Depth
56' 0"
Max Ridge Height
44' 5"
Type
Drive Under
Area
482 sq. ft.
Count
2 Cars
Entry Location
Front
First Floor
10'
Second Floor
9'