



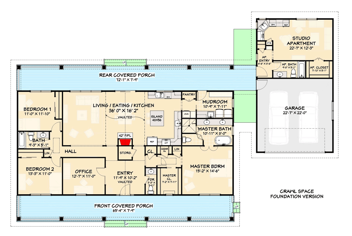
Total Heated Area
2,470 sq. ft.
1st Floor
2,470 sq. ft.
Basement Unfinished
1,913 sq. ft.
Apartment
412 sq. ft.
Porch, Front
515 sq. ft.
Porch, Rear
515 sq. ft.
Bedrooms
3 or 4
Full bathrooms
2 or 3
Half bathrooms
1
Standard Foundations
Basement
Exterior Walls
2x4
Width
95' 5"
Depth
61' 1"
Max Ridge Height
23' 1"
Type
Detached
Area
557 sq. ft.
Count
2 Cars
Entry Location
Front
Lower Level
7' 9"
First Floor
9'
Room
Ceiling Type
Height
Dining Room
Vaulted
17' 10''
Living Room
Vaulted
17' 10''
Foyer
Vaulted
17' 10''
Primary Pitch
10 on 12
Secondary Pitch
4 on 12
Framing Type
Stick
Total Heated Area
2,470 sq. ft.
1st Floor
2,470 sq. ft.
Basement Unfinished
1,913 sq. ft.
Apartment
412 sq. ft.
Porch, Front
515 sq. ft.
Porch, Rear
515 sq. ft.
Bedrooms
3 or 4
Full bathrooms
2 or 3
Half bathrooms
1
Standard Foundations
Basement
Exterior Walls
2x4
Width
95' 5"
Depth
61' 1"
Max Ridge Height
23' 1"
Type
Detached
Area
557 sq. ft.
Count
2 Cars
Entry Location
Front
Lower Level
7' 9"
First Floor
9'
Room
Ceiling Type
Height
Dining Room
Vaulted
17' 10''
Living Room
Vaulted
17' 10''
Foyer
Vaulted
17' 10''
Primary Pitch
10 on 12
Secondary Pitch
4 on 12
Framing Type
Stick