LogoLogo TaglineLogo Tagline
Loading...
Plan 80723PM

Glorious Turret

Heated S.F.
2,928
Beds
4
Baths
2.5
Stories
2

Floor Plan

Plan 80723PM

Main Level
Main Level
2nd Floor
2nd Floor
3rd Floor
3rd Floor

Plan 80723PM

M-F 9am-5pm EST |

1-203-761-8500

Main Level

Plan 80723PM: Glorious Turret - Floor Plan - Main Level - Victorian

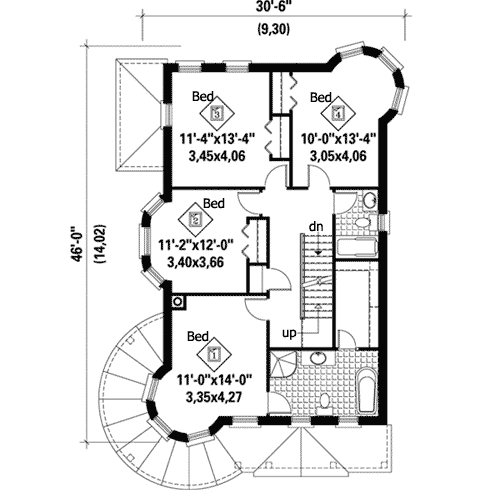
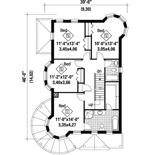
2nd Floor

Plan 80723PM: Glorious Turret - Floor Plan - 2nd Floor - Victorian

3rd Floor

Plan 80723PM: Glorious Turret - Floor Plan - 3rd Floor - Victorian

Plan Details

  • This stately Victorian home plan has a big turret that rises for three stories, creating interesting room shapes.
  • Windows flood the bay in the living room with light, adding to the warmth of the corner fireplace.
  • The formal dining room also has a bay window, as does the informal breakfast nook off the kitchen.
  • On the second floor, four large bedrooms give everyone room to spread out comfortably.

What's Included

Please note this plan is designed to the National Building Code of Canada.  
  • Exterior Elevations – Four detailed exterior elevations views showing the final appearance of each side of the house.
  • Foundation Plans – Different isometric views with dimensions as well as relevant information to build the foundation.
  • Floor Plans – A drawing of each floor of the house. They are fully dimensioned showing the size of rooms and the location and size of windows, doors and staircases.
  • Cross-Section View – Vertical section of the house showing the structure, insulation, typical wall configuration as well as other details
  • The plans include the 4 elevations views, foundation plans, floor plans, cross section, staircase section, materials specifications and various construction details which aid in the house's construction.
  • The plan views, cross sections and front elevations are drawn to the scale of 1/4" = 1'-0"; the side and rear elevations are 1/8" = 1'-0" and some details are 1/2" = 1'-0".
  • Lintel, beam, post, footing sizes, etc. are calculated (may require local architect/ engineer stamp) and the plans are available in metric.

View Sample Plan

What's Not Included

  • Architectural or Engineering Stamp - handled locally if required
  • Site Plan - handled locally when required
  • Mechanical Drawings (location of heating and air equipment and duct work) - your subcontractors handle this
  • Plumbing Drawings (drawings showing the actual plumbing pipe sizes and locations) - your subcontractors handle this
  • Energy calculations - handled locally when required

Starting at

Loading...
Price Match Guarantee
What's included?

FORMAT & LICENSE

Choose an option

$0

Not sure what to choose?

Pointer link icon

FOUNDATION

Choose an option

+$0

OPTIONS

Choose Additional Options

+$0

Loading...

Modify this Plan

Receive a free modification quote within 3 business days.

Loading...

Start with a Cost Report

Calculate the cost to build & furnish your home.

Loading...
Loading...

Square Footage Breakdown

Total Heated Area

2,928 sq. ft.

1st Floor

1,156 sq. ft.

2nd Floor

1,156 sq. ft.

3rd Floor

616 sq. ft.

Beds/Baths

Bedrooms

4

Full bathrooms

2

Half bathrooms

1

Foundation Type

Standard Foundations

Basement

Exterior Walls

Exterior Walls

2x6

Dimensions

Width

30' 6"

Depth

46' 0"

Max Ridge Height

42' 7"

Ceiling Heights

First Floor

9' 2"

Second Floor

8' 2"

Roof Details

Framing Type

Truss

Architectural Style

Victorian

Square Footage Breakdown

Total Heated Area

2,928 sq. ft.

1st Floor

1,156 sq. ft.

2nd Floor

1,156 sq. ft.

3rd Floor

616 sq. ft.

Beds/Baths

Bedrooms

4

Full bathrooms

2

Half bathrooms

1

Foundation Type

Standard Foundations

Basement

Exterior Walls

Exterior Walls

2x6

Dimensions

Width

30' 6"

Depth

46' 0"

Max Ridge Height

42' 7"

Ceiling Heights

First Floor

9' 2"

Second Floor

8' 2"

Roof Details

Framing Type

Truss

Architectural Style

* Please note that all sale prices and promotions featured on our website are subject to change without prior notice. While we strive to provide accurate and up-to-date information, occasional discrepancies may occur due to factors beyond our control. We encourage you to verify all details, including pricing and availability, before making any purchase. Exclusions or restrictions may apply to specific promotions. We reserve the right to modify or cancel any sale at our discretion. Thank you for your understanding and happy shopping!Let's go back to the top.