

Total Heated Area
2,607 sq. ft.
1st Floor
1,812 sq. ft.
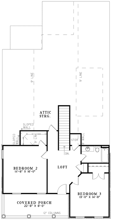
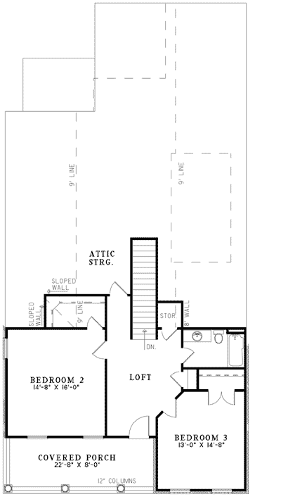
2nd Floor
795 sq. ft.
Porch, Front
362 sq. ft.
Porch, Rear
87 sq. ft.
Bedrooms
4
Full bathrooms
3
Standard Foundations
Crawl, Slab
Exterior Walls
2x4
Optional Type(s)
2x6
Width
36' 4"
Depth
73' 6"
Max Ridge Height
33' 5"
Type
Attached
Area
457 sq. ft.
Count
2 Cars
Entry Location
Rear
First Floor
10'
Second Floor
9'
Primary Pitch
14 on 12
Framing Type
Stick
Total Heated Area
2,607 sq. ft.
1st Floor
1,812 sq. ft.
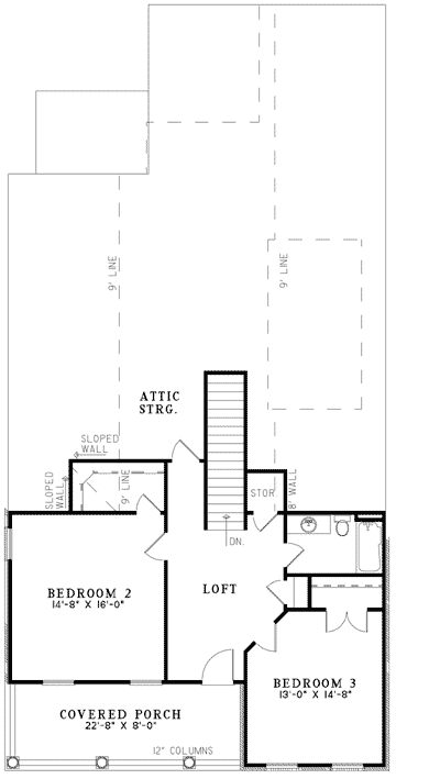
2nd Floor
795 sq. ft.
Porch, Front
362 sq. ft.
Porch, Rear
87 sq. ft.
Bedrooms
4
Full bathrooms
3
Standard Foundations
Crawl, Slab
Exterior Walls
2x4
Optional Type(s)
2x6
Width
36' 4"
Depth
73' 6"
Max Ridge Height
33' 5"
Type
Attached
Area
457 sq. ft.
Count
2 Cars
Entry Location
Rear
First Floor
10'
Second Floor
9'
Primary Pitch
14 on 12
Framing Type
Stick