


Total Heated Area
2,484 sq. ft.
1st Floor
2,484 sq. ft.
Optional Lower Level
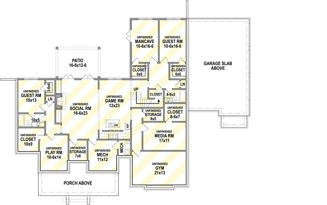
2,883 sq. ft.
Bonus
688 sq. ft.
Apartment
529 sq. ft.
Porch, Front
310 sq. ft.
Porch, Rear
215 sq. ft.
Bedrooms
3, 4, 5, or 6
Full bathrooms
3, 4, 5, 6, or 7
Half bathrooms
1
Standard Foundations
Slab
Exterior Walls
2x4
Optional Type(s)
2x6
Width
92' 0"
Depth
70' 0"
Max Ridge Height
25' 0"
Type
Attached
Area
888 sq. ft.
Count
2 or 3 Cars
Entry Location
Front, Side
First Floor
10'
Second Floor
9'
Room
Ceiling Type
Height
Bedroom 2
Tray
0' 0''
Bedroom 3
Tray
0' 0''
Dining Room
Coffered
0' 0''
Primary Pitch
8 on 12
Secondary Pitch
12 on 12
Framing Type
Stick
Total Heated Area
2,484 sq. ft.
1st Floor
2,484 sq. ft.
Optional Lower Level
2,883 sq. ft.
Bonus
688 sq. ft.
Apartment
529 sq. ft.
Porch, Front
310 sq. ft.
Porch, Rear
215 sq. ft.
Bedrooms
3, 4, 5, or 6
Full bathrooms
3, 4, 5, 6, or 7
Half bathrooms
1
Standard Foundations
Slab
Exterior Walls
2x4
Optional Type(s)
2x6
Width
92' 0"
Depth
70' 0"
Max Ridge Height
25' 0"
Type
Attached
Area
888 sq. ft.
Count
2 or 3 Cars
Entry Location
Front, Side
First Floor
10'
Second Floor
9'
Room
Ceiling Type
Height
Bedroom 2
Tray
0' 0''
Bedroom 3
Tray
0' 0''
Dining Room
Coffered
0' 0''
Primary Pitch
8 on 12
Secondary Pitch
12 on 12
Framing Type
Stick