LogoLogo TaglineLogo Tagline
Loading...
Plan 95060RW

Luxurious One-Level House Plan with Large Covered Patio and Outdoor Kitchen

Heated S.F.
2,862
Beds
2 - 4
Baths
2.5 - 4.5
Stories
1
Cars
3

Floor Plan

Plan 95060RW

Main Level
Main Level
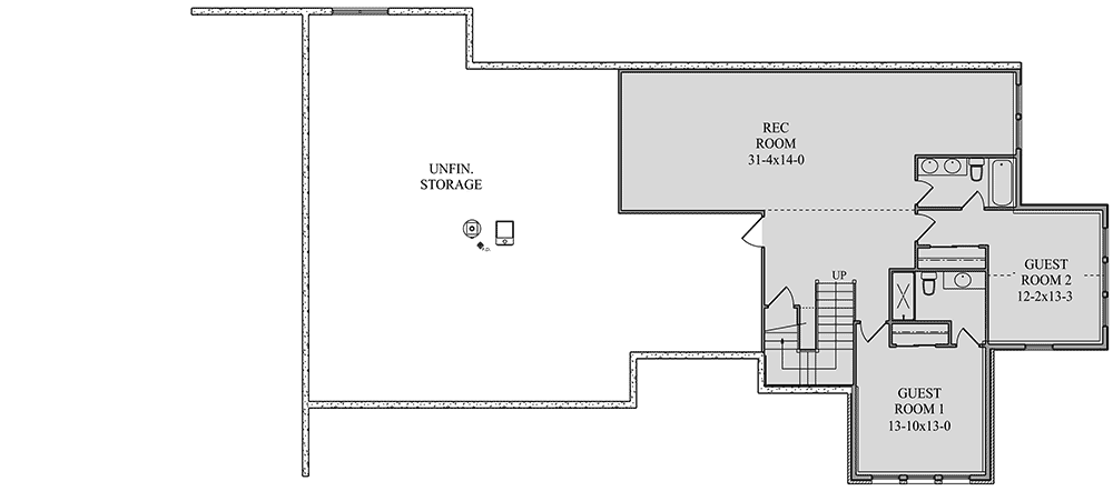
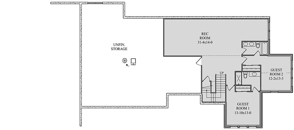
Optional Lower Level
Optional Lower Level

Plan 95060RW

M-F 9am-5pm EST |

1-203-761-8500

Main Level

Plan 95060RW: Luxurious One-Level House Plan with Large Covered Patio and Outdoor Kitchen - Floor Plan - Main Level - Contemporary, Craftsman, Mountain, Ranch, Rustic

Optional Lower Level

Plan 95060RW: Luxurious One-Level House Plan with Large Covered Patio and Outdoor Kitchen - Floor Plan - Optional Lower Level - Contemporary, Craftsman, Mountain, Ranch, Rustic

Plan Details

  • This luxurious, mountain house plan features large, outdoor living spaces and a spacious, open-concept interior. The shared living space is centered in the home, dividing the bedrooms for added privacy.
  • The eat-in kitchen offers an oversized island for additional seating and a nearby walk-in pantry can accommodate any size family or gathering.
  • The master bedroom is located to the right of the home, across from a quiet study. Sliding doors lead to the back patio and a corner fireplace adds comfort to the space. A large ensuite highlights dual vanities, a double-headed shower, and a sizable walk-in closet.
  • To the left of the home, discover a second bedroom, which is perfect for guests, and includes a 4-fixture bath and walk-in closet.
  • The side-entry, 3-car garage has a large storage room attached for yard tools, and a spacious mudroom / laundry room serves as a great transition space between indoors and out.
  • An optional lower level offers more living space with a large recreation room and two additional bedrooms, each with their own bath.

What's Included

  • Cover Page
  • All Four Exterior Elevations (front, left, rear and right)
  • Dimensioned Floor Plans
  • Foundation Plan (with no specifications of structural elements)
  • Roof Plan (with no specifications of structural elements)
  • Typical Wall Sections
  • Electrical plan
View Sample Plan

What's Not Included

  • Architectural or Engineering Stamp - handled locally if required
  • Site Plan - handled locally when required
  • Mechanical Drawings (location of heating and air equipment and duct work) - your subcontractors handle this
  • Plumbing Drawings (drawings showing the actual plumbing pipe sizes and locations) - your subcontractors handle this
  • REScheck or other energy related calculations are NOT included.
  • Wind load or seismic calculations are NOT included. 
  • Framing plans or beam sizes are NOT included.
  • Other specific drawings that your local permit office may requires

Starting at

Loading...
Price Match Guarantee
What's included?

FORMAT & LICENSE

Choose an option

$0

Not sure what to choose?

Pointer link icon

FOUNDATION

Choose an option

+$0

OPTIONS

Choose Additional Options

+$0

Loading...

Modify this Plan

Receive a free modification quote within 3 business days.

Loading...

Start with a Cost Report

Calculate the cost to build & furnish your home.

Loading...
Loading...

Square Footage Breakdown

Total Heated Area

2,862 sq. ft.

1st Floor

2,862 sq. ft.

Basement Unfinished

1,531 sq. ft.

Optional Lower Level

1,331 sq. ft.

Porch, Combined

1,387 sq. ft.

Beds/Baths

Bedrooms

2, 3, or 4

Full bathrooms

2, 3, or 4

Half bathrooms

1

Foundation Type

Standard Foundations

Basement

Exterior Walls

Exterior Walls

2x6

Dimensions

Width

109' 3"

Depth

57' 2"

Max Ridge Height

23' 9"

Garage

Type

Attached

Area

1181 sq. ft.

Count

3 Cars

Entry Location

Side

Ceiling Heights

Lower Level

10'

First Floor

10'

Roof Details

Primary Pitch

4 on 12

Architectural Style

Contemporary

Square Footage Breakdown

Total Heated Area

2,862 sq. ft.

1st Floor

2,862 sq. ft.

Basement Unfinished

1,531 sq. ft.

Optional Lower Level

1,331 sq. ft.

Porch, Combined

1,387 sq. ft.

Beds/Baths

Bedrooms

2, 3, or 4

Full bathrooms

2, 3, or 4

Half bathrooms

1

Foundation Type

Standard Foundations

Basement

Exterior Walls

Exterior Walls

2x6

Dimensions

Width

109' 3"

Depth

57' 2"

Max Ridge Height

23' 9"

Garage

Type

Attached

Area

1181 sq. ft.

Count

3 Cars

Entry Location

Side

Ceiling Heights

Lower Level

10'

First Floor

10'

Roof Details

Primary Pitch

4 on 12

* Please note that all sale prices and promotions featured on our website are subject to change without prior notice. While we strive to provide accurate and up-to-date information, occasional discrepancies may occur due to factors beyond our control. We encourage you to verify all details, including pricing and availability, before making any purchase. Exclusions or restrictions may apply to specific promotions. We reserve the right to modify or cancel any sale at our discretion. Thank you for your understanding and happy shopping!Let's go back to the top.