


Total Heated Area
9,358 sq. ft.
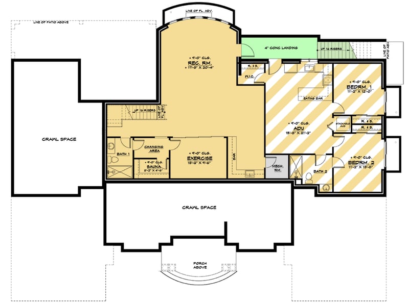
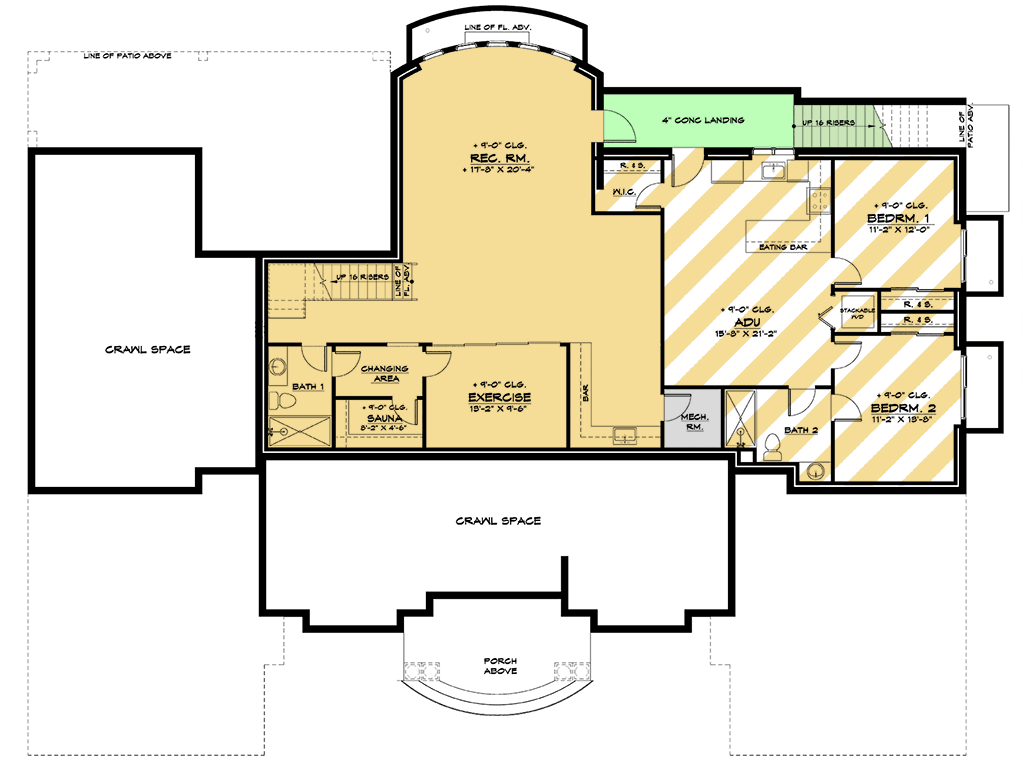
Lower Level
1,870 sq. ft.
1st Floor
3,379 sq. ft.
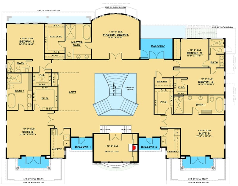
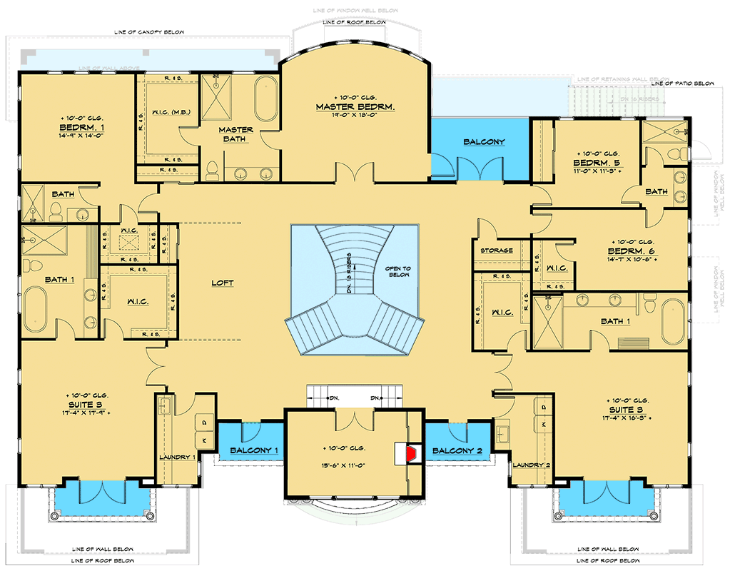
2nd Floor
4,109 sq. ft.
Apartment
1,870 sq. ft.
Porch, Combined
611 sq. ft.
Balcony / Veranda
444 sq. ft.
Bedrooms
10
Full bathrooms
8
Half bathrooms
1
Standard Foundations
Basement
Exterior Walls
2x6
Width
92' 0"
Depth
67' 10"
Max Ridge Height
47' 0"
Type
Attached
Area
1110 sq. ft.
Count
4 Cars
Entry Location
Front
Lower Level
9'
First Floor
10'
Second Floor
10'
Primary Pitch
5 on 12
Framing Type
Truss
Total Heated Area
9,358 sq. ft.
Lower Level
1,870 sq. ft.
1st Floor
3,379 sq. ft.
2nd Floor
4,109 sq. ft.
Apartment
1,870 sq. ft.
Porch, Combined
611 sq. ft.
Balcony / Veranda
444 sq. ft.
Bedrooms
10
Full bathrooms
8
Half bathrooms
1
Standard Foundations
Basement
Exterior Walls
2x6
Width
92' 0"
Depth
67' 10"
Max Ridge Height
47' 0"
Type
Attached
Area
1110 sq. ft.
Count
4 Cars
Entry Location
Front
Lower Level
9'
First Floor
10'
Second Floor
10'
Primary Pitch
5 on 12
Framing Type
Truss