


We also include a list of building specifications, and notes for each page, with any important info the builder may need.
Total Heated Area
3,963 sq. ft.
1st Floor
3,287 sq. ft.
2nd Floor
676 sq. ft.
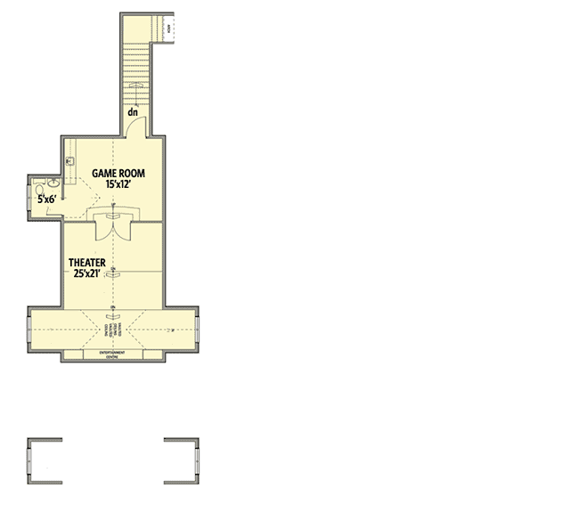
Optional Lower Level
2,841 sq. ft.
Deck
740 sq. ft.
Bedrooms
3, 4, 5, or 6
Full bathrooms
3, 4, or 5
Half bathrooms
2 or 3
Standard Foundations
Basement
Exterior Walls
2x6
Width
92' 0"
Depth
117' 0"
Max Ridge Height
32' 4"
Type
Attached
Area
2607 sq. ft.
Count
4 or 5 Cars
Entry Location
Courtyard
Lower Level
9'
First Floor
10'
Second Floor
9'
Primary Pitch
10 on 12
Framing Type
Truss
Total Heated Area
3,963 sq. ft.
1st Floor
3,287 sq. ft.
2nd Floor
676 sq. ft.
Optional Lower Level
2,841 sq. ft.
Deck
740 sq. ft.
Bedrooms
3, 4, 5, or 6
Full bathrooms
3, 4, or 5
Half bathrooms
2 or 3
Standard Foundations
Basement
Exterior Walls
2x6
Width
92' 0"
Depth
117' 0"
Max Ridge Height
32' 4"
Type
Attached
Area
2607 sq. ft.
Count
4 or 5 Cars
Entry Location
Courtyard
Lower Level
9'
First Floor
10'
Second Floor
9'
Primary Pitch
10 on 12
Framing Type
Truss