

Total Heated Area
2,987 sq. ft.
1st Floor
2,987 sq. ft.
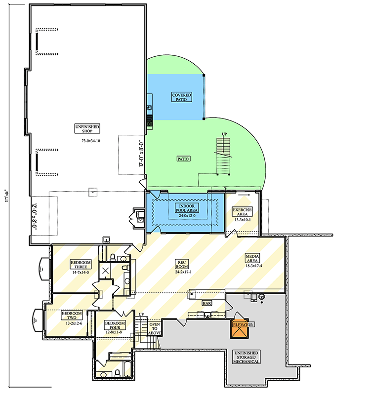
Optional Lower Level
3,073 sq. ft.
Porch, Combined
2,025 sq. ft.
Bedrooms
3, 4, 5, or 6
Full bathrooms
3, 4, or 5
Half bathrooms
1
Standard Foundations
Walkout
Exterior Walls
2x6
Width
98' 9"
Depth
117' 6"
Max Ridge Height
23' 3"
Type
Attached
Area
1091 sq. ft.
Count
4 Cars
Entry Location
Front
Lower Level
10'
First Floor
10'
Room
Ceiling Type
Height
Foyer
17' 0''
Great Room
Vaulted
0' 0''
Primary Pitch
8 on 12
Secondary Pitch
10 on 12
Framing Type
Truss
Total Heated Area
2,987 sq. ft.
1st Floor
2,987 sq. ft.
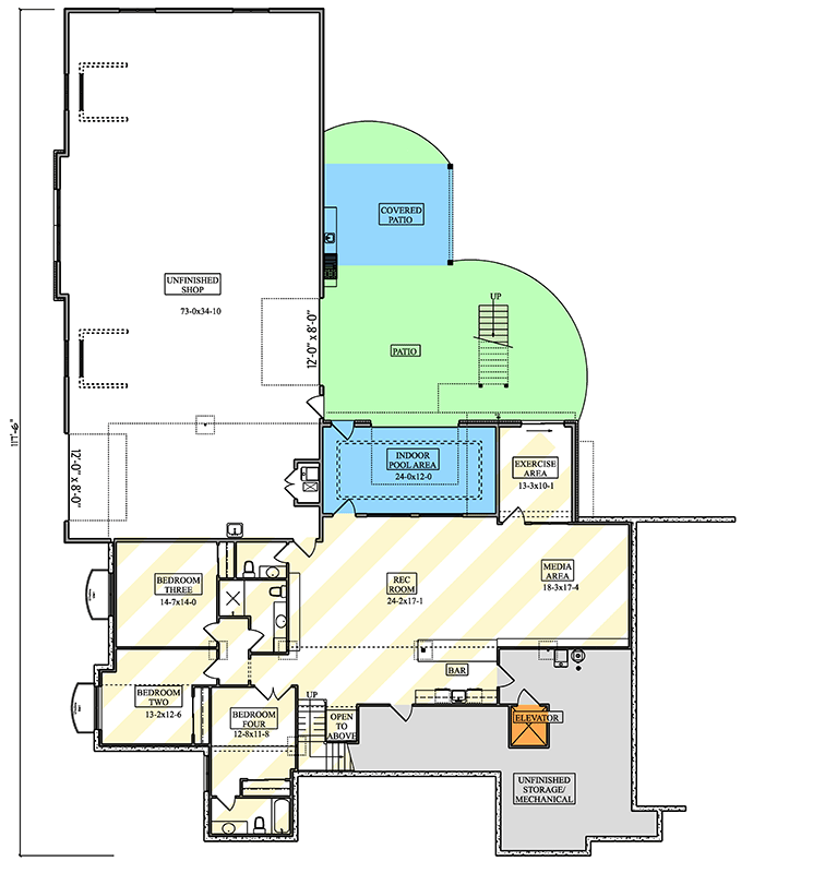
Optional Lower Level
3,073 sq. ft.
Porch, Combined
2,025 sq. ft.
Bedrooms
3, 4, 5, or 6
Full bathrooms
3, 4, or 5
Half bathrooms
1
Standard Foundations
Walkout
Exterior Walls
2x6
Width
98' 9"
Depth
117' 6"
Max Ridge Height
23' 3"
Type
Attached
Area
1091 sq. ft.
Count
4 Cars
Entry Location
Front
Lower Level
10'
First Floor
10'
Room
Ceiling Type
Height
Foyer
17' 0''
Great Room
Vaulted
0' 0''
Primary Pitch
8 on 12
Secondary Pitch
10 on 12
Framing Type
Truss