

Total Heated Area
1,753 sq. ft.
1st Floor
734 sq. ft.
2nd Floor
1,019 sq. ft.
Bedrooms
3
Full bathrooms
1
Half bathrooms
1
Standard Foundations
Basement
Exterior Walls
2x6
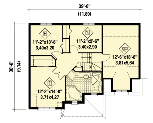
Width
39' 0"
Depth
30' 0"
Max Ridge Height
35' 4"
Type
Attached
Area
312 sq. ft.
Count
1 Cars
Entry Location
Front
First Floor
8'
Second Floor
8'
Primary Pitch
12 on 12
Framing Type
Truss
Total Heated Area
1,753 sq. ft.
1st Floor
734 sq. ft.
2nd Floor
1,019 sq. ft.
Bedrooms
3
Full bathrooms
1
Half bathrooms
1
Standard Foundations
Basement
Exterior Walls
2x6
Width
39' 0"
Depth
30' 0"
Max Ridge Height
35' 4"
Type
Attached
Area
312 sq. ft.
Count
1 Cars
Entry Location
Front
First Floor
8'
Second Floor
8'
Primary Pitch
12 on 12
Framing Type
Truss