LogoLogo TaglineLogo Tagline
Loading...
Plan 36527TX

Mediterranean House Plan with the Ultimate Media Room

Heated S.F.
6,121
Beds
5
Baths
6.5+
Stories
2
Cars
4

Floor Plan

Plan 36527TX

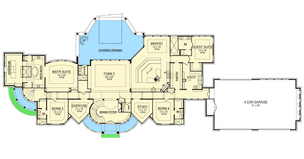
Main Level
Main Level
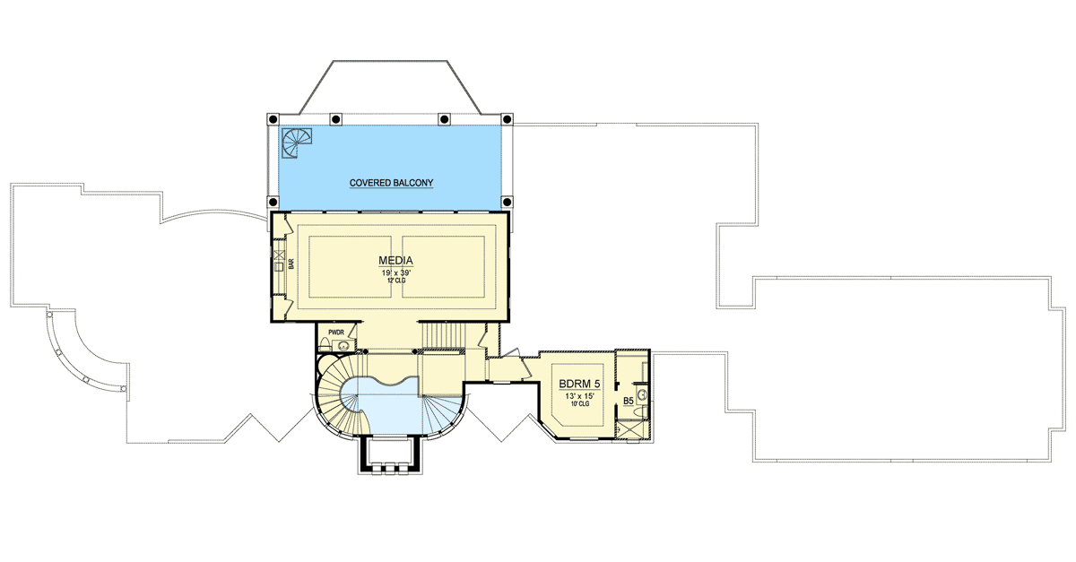
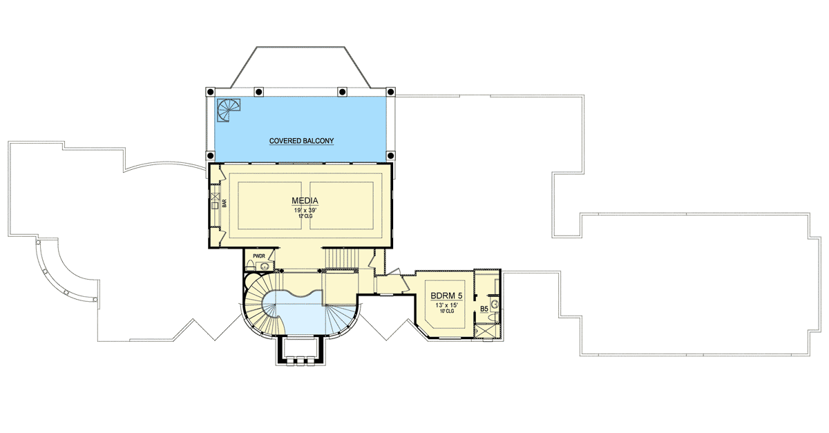
2nd Floor
2nd Floor

Plan 36527TX

M-F 9am-5pm EST |

1-203-761-8500

Main Level

Plan 36527TX: Mediterranean House Plan with the Ultimate Media Room - Floor Plan - Main Level - Hill Country, Mediterranean, Tuscan

2nd Floor

Plan 36527TX: Mediterranean House Plan with the Ultimate Media Room - Floor Plan - 2nd Floor - Hill Country, Mediterranean, Tuscan

Plan Details

  • This grand Mediterranean house plan extends to 185' in width, giving you lots of room for the luxuries inside.
  • The grand foyer takes the unique shape of a semi-circle and showcases a gorgeous curved staircase.
  • With an open layout and an informal eating area, the home suits families who like casual living.
  • The high-end kitchen boasts two big islands, one with an eating bar and both with views of the rear covered veranda.
  • No walk-in pantry for this unusual house - you get a huge walk-through pantry with tons of storage on each wall.
  • The home features a study and an exercise room, both with the same unique shape.
  • The master suite is designed to thoroughly pamper homeowners with features like the big bow window, a spectacular master bathroom and an enormous walk-in closet with built-ins right smack in the middle.
  • Follow the stairs to the second floor where you have the massive media room complete with a tray ceiling, wet bar, nearby half bath and a huge second floor covered balcony.
  • Bedroom 5 is on this level, away from the other bedrooms.

What's Included

  • Cover sheet
  • Foundation Plan - schematic only 
  • First floor fully dimensioned floor plan with notes - All requisite aspects of the floor plan are precise, though the details of flooring material and non-structural aesthetics are left to the discretion of the buyer.
  • Second floor fully dimensioned floor plan with notes - Exact flooring materials, appliance selection and non-structural aesthetics are left to the discretion of the buyer.
  • First floor lighting and electrical plan - On this sheet you have a schematic of the lights, electrical plugs, phone locations, and code items such as smoke detectors.
  • Second floor lighting and electrical plan - On this sheet you have a schematic of the lights, electrical plugs, phone locations, and code items such as smoke detectors.
  • Front & rear elevations with notes-detailed drawings of the left and right sides of the home along with any notes and exterior dimensions that may be required to complete construction. The elevations show the contractor's exterior materials, general architectural design intent, types of openings and other details. All of our elevations are drawn to ¼ scale.
  • Left and right elevations with notes - detailed drawings of the left and right sides of the home along with any notes and exterior dimensions that may be required to complete construction. The elevations show the contractor's exterior materials, general architectural design intent, types of openings and other details. All of our elevations are drawn to ¼ scale.
  • Roof plan - This sheet roof plan is an integral piece of a well-designed set of elevations. Roof cuts are shown to demonstrate how the architectural design is intended to make the elevation aesthetically pleasing to the eye.
  • Sections page 
  • Standard detail sheets on construction. These sheets are used to cover a broad range of many everyday situations that may occur on a construction site. The detail sheets are current and accurate to the area and time of which the house was originally designed.

What's Not Included

  • Architectural or Engineering Stamp - handled locally if required
  • Site Plan - handled locally when required
  • Mechanical Drawings (location of heating and air equipment and duct work) - your subcontractors handle this
  • Plumbing Drawings (drawings showing the actual plumbing pipe sizes and locations) - your subcontractors handle this
  • Energy calculations - handled locally when required

Starting at

Loading...
Price Match Guarantee
What's included?

FORMAT & LICENSE

Choose an option

$0

Not sure what to choose?

Pointer link icon

FOUNDATION

Choose an option

+$0

OPTIONS

Choose Additional Options

+$0

Loading...

Modify this Plan

Receive a free modification quote within 3 business days.

Loading...

Start with a Cost Report

Calculate the cost to build & furnish your home.

Loading...
Loading...

Square Footage Breakdown

Total Heated Area

6,121 sq. ft.

1st Floor

5,061 sq. ft.

2nd Floor

1,060 sq. ft.

Beds/Baths

Bedrooms

5

Full bathrooms

6

Half bathrooms

2

Foundation Type

Standard Foundations

Slab

Exterior Walls

Exterior Walls

2x4

Dimensions

Width

185' 0"

Depth

73' 0"

Max Ridge Height

40' 0"

Garage

Type

Attached

Area

1737 sq. ft.

Count

4 Cars

Entry Location

Front

Ceiling Heights

First Floor

12'

Second Floor

10'

Room

Ceiling Type

Height

Family Room

18' 0''

Media Room

12' 0''

Architectural Style

Hill Country

Square Footage Breakdown

Total Heated Area

6,121 sq. ft.

1st Floor

5,061 sq. ft.

2nd Floor

1,060 sq. ft.

Beds/Baths

Bedrooms

5

Full bathrooms

6

Half bathrooms

2

Foundation Type

Standard Foundations

Slab

Exterior Walls

Exterior Walls

2x4

Dimensions

Width

185' 0"

Depth

73' 0"

Max Ridge Height

40' 0"

Garage

Type

Attached

Area

1737 sq. ft.

Count

4 Cars

Entry Location

Front

Ceiling Heights

First Floor

12'

Second Floor

10'

Room

Ceiling Type

Height

Family Room

18' 0''

Media Room

12' 0''

* Please note that all sale prices and promotions featured on our website are subject to change without prior notice. While we strive to provide accurate and up-to-date information, occasional discrepancies may occur due to factors beyond our control. We encourage you to verify all details, including pricing and availability, before making any purchase. Exclusions or restrictions may apply to specific promotions. We reserve the right to modify or cancel any sale at our discretion. Thank you for your understanding and happy shopping!Let's go back to the top.