LogoLogo TaglineLogo Tagline
Loading...
Plan 80726PM

Metal Hip Roof Country Home Plan

Heated S.F.
2,601
Beds
4
Baths
2.5
Stories
2

Floor Plan

Plan 80726PM

Main Level
Main Level
Main Level
Main Level
2nd Floor
2nd Floor
2nd Floor
2nd Floor

Plan 80726PM

M-F 9am-5pm EST |

1-203-761-8500

Main Level

Plan 80726PM: Metal Hip Roof Country Home Plan - Floor Plan - Main Level - Country

Main Level

Plan 80726PM: Metal Hip Roof Country Home Plan - Floor Plan - Main Level - Country

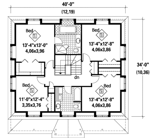
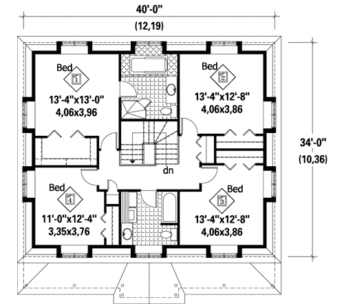
2nd Floor

Plan 80726PM: Metal Hip Roof Country Home Plan - Floor Plan - 2nd Floor - Country

2nd Floor

Plan 80726PM: Metal Hip Roof Country Home Plan - Floor Plan - 2nd Floor - Country

Plan Details

  • This spacious Country home plan has a metal hip roof - unusual for a Country home.
  • It's designed for the large family with plenty of room to spread out with a den, family room and a formal living room.
  • Upstairs, each of the four bedrooms has two charming dormer windows.
  • The master suite has a large walk-in closet and its own private bath.

What's Included

Please note this plan is designed to the National Building Code of Canada.  
  • Exterior Elevations – Four detailed exterior elevations views showing the final appearance of each side of the house.
  • Foundation Plans – Different isometric views with dimensions as well as relevant information to build the foundation.
  • Floor Plans – A drawing of each floor of the house. They are fully dimensioned showing the size of rooms and the location and size of windows, doors and staircases.
  • Cross-Section View – Vertical section of the house showing the structure, insulation, typical wall configuration as well as other details
  • The plans include the 4 elevations views, foundation plans, floor plans, cross section, staircase section, materials specifications and various construction details which aid in the house's construction.
  • The plan views, cross sections and front elevations are drawn to the scale of 1/4" = 1'-0"; the side and rear elevations are 1/8" = 1'-0" and some details are 1/2" = 1'-0".
  • Lintel, beam, post, footing sizes, etc. are calculated (may require local architect/ engineer stamp) and the plans are available in metric.

View Sample Plan

What's Not Included

  • Architectural or Engineering Stamp - handled locally if required
  • Site Plan - handled locally when required
  • Mechanical Drawings (location of heating and air equipment and duct work) - your subcontractors handle this
  • Plumbing Drawings (drawings showing the actual plumbing pipe sizes and locations) - your subcontractors handle this
  • Energy calculations - handled locally when required

Starting at

Loading...
Price Match Guarantee
What's included?

FORMAT & LICENSE

Choose an option

$0

Not sure what to choose?

Pointer link icon

FOUNDATION

Choose an option

+$0

OPTIONS

Choose Additional Options

+$0

Loading...

Modify this Plan

Receive a free modification quote within 3 business days.

Loading...

Start with a Cost Report

Calculate the cost to build & furnish your home.

Loading...
Loading...

Square Footage Breakdown

Total Heated Area

2,601 sq. ft.

1st Floor

1,360 sq. ft.

2nd Floor

1,241 sq. ft.

Beds/Baths

Bedrooms

4

Full bathrooms

2

Half bathrooms

1

Foundation Type

Standard Foundations

Basement

Exterior Walls

Exterior Walls

2x6

Dimensions

Width

40' 0"

Depth

34' 0"

Max Ridge Height

33' 3"

Roof Details

Framing Type

Truss

Architectural Style

Country

Square Footage Breakdown

Total Heated Area

2,601 sq. ft.

1st Floor

1,360 sq. ft.

2nd Floor

1,241 sq. ft.

Beds/Baths

Bedrooms

4

Full bathrooms

2

Half bathrooms

1

Foundation Type

Standard Foundations

Basement

Exterior Walls

Exterior Walls

2x6

Dimensions

Width

40' 0"

Depth

34' 0"

Max Ridge Height

33' 3"

Roof Details

Framing Type

Truss

Architectural Style

* Please note that all sale prices and promotions featured on our website are subject to change without prior notice. While we strive to provide accurate and up-to-date information, occasional discrepancies may occur due to factors beyond our control. We encourage you to verify all details, including pricing and availability, before making any purchase. Exclusions or restrictions may apply to specific promotions. We reserve the right to modify or cancel any sale at our discretion. Thank you for your understanding and happy shopping!Let's go back to the top.