

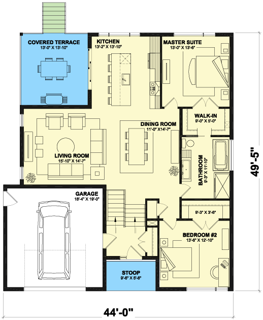
Total Heated Area
2,938 sq. ft.
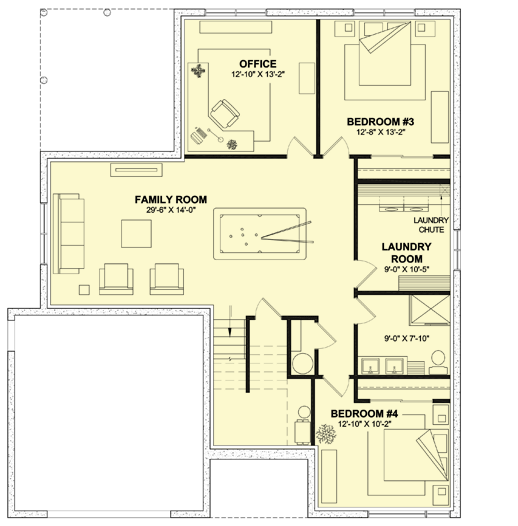
Lower Level
1,469 sq. ft.
1st Floor
1,469 sq. ft.
Bedrooms
4
Full bathrooms
2
Standard Foundations
Basement
Exterior Walls
2x6
Width
44' 0"
Depth
49' 5"
Max Ridge Height
18' 3"
Type
Attached
Area
400 sq. ft.
Count
1 Cars
Entry Location
Front
First Floor
8'
Second Floor
8'
Primary Pitch
1 on 12
Total Heated Area
2,938 sq. ft.
Lower Level
1,469 sq. ft.
1st Floor
1,469 sq. ft.
Bedrooms
4
Full bathrooms
2
Standard Foundations
Basement
Exterior Walls
2x6
Width
44' 0"
Depth
49' 5"
Max Ridge Height
18' 3"
Type
Attached
Area
400 sq. ft.
Count
1 Cars
Entry Location
Front
First Floor
8'
Second Floor
8'
Primary Pitch
1 on 12