




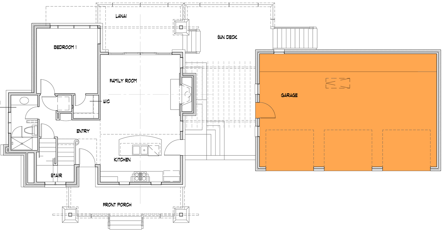
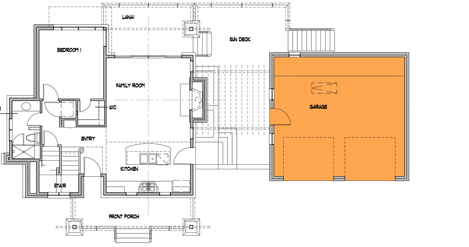
Total Heated Area
985 sq. ft.
1st Floor
740 sq. ft.
2nd Floor
245 sq. ft.
Optional Lower Level
742 sq. ft.
Porch, Front
274 sq. ft.
Deck
352 sq. ft.
Bedrooms
2 or 3
Full bathrooms
2 or 3
Standard Foundations
Slab
Exterior Walls
2x4
Optional Type(s)
2x6
Width
59' 11"
Depth
41' 6"
Max Ridge Height
23' 0"
Type
Detached
Area
264 sq. ft.
Count
1, 2, or 3 Cars
Entry Location
Front
Lower Level
8'
First Floor
9'
Second Floor
9'
Room
Ceiling Type
Height
Living Room
Cathedral
0' 0''
Kitchen
Cathedral
0' 0''
Primary Pitch
4 on 12
Framing Type
Stick
Total Heated Area
985 sq. ft.
1st Floor
740 sq. ft.
2nd Floor
245 sq. ft.
Optional Lower Level
742 sq. ft.
Porch, Front
274 sq. ft.
Deck
352 sq. ft.
Bedrooms
2 or 3
Full bathrooms
2 or 3
Standard Foundations
Slab
Exterior Walls
2x4
Optional Type(s)
2x6
Width
59' 11"
Depth
41' 6"
Max Ridge Height
23' 0"
Type
Detached
Area
264 sq. ft.
Count
1, 2, or 3 Cars
Entry Location
Front
Lower Level
8'
First Floor
9'
Second Floor
9'
Room
Ceiling Type
Height
Living Room
Cathedral
0' 0''
Kitchen
Cathedral
0' 0''
Primary Pitch
4 on 12
Framing Type
Stick