


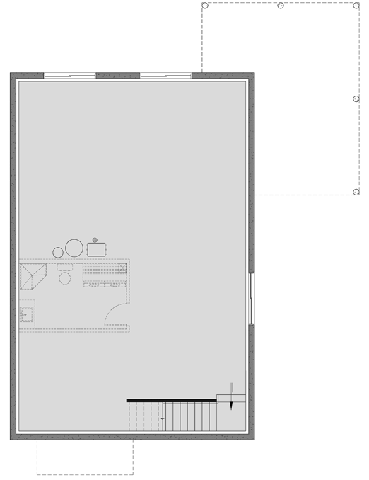
Total Heated Area
1,176 sq. ft.
1st Floor
1,176 sq. ft.
Optional Lower Level
1,176 sq. ft.
Bedrooms
1, 2, 3, or 4
Full bathrooms
1 or 2
Standard Foundations
Basement
Exterior Walls
2x6
Width
28' 0"
Depth
42' 0"
Max Ridge Height
18' 6"
Lower Level
8'
First Floor
9'
Living area
13' 2''
Primary Pitch
3 on 12
Framing Type
Truss
Total Heated Area
1,176 sq. ft.
1st Floor
1,176 sq. ft.
Optional Lower Level
1,176 sq. ft.
Bedrooms
1, 2, 3, or 4
Full bathrooms
1 or 2
Standard Foundations
Basement
Exterior Walls
2x6
Width
28' 0"
Depth
42' 0"
Max Ridge Height
18' 6"
Lower Level
8'
First Floor
9'
Living area
13' 2''
Primary Pitch
3 on 12
Framing Type
Truss