Exclusive



Total Heated Area
2,591 sq. ft.
1st Floor
2,591 sq. ft.
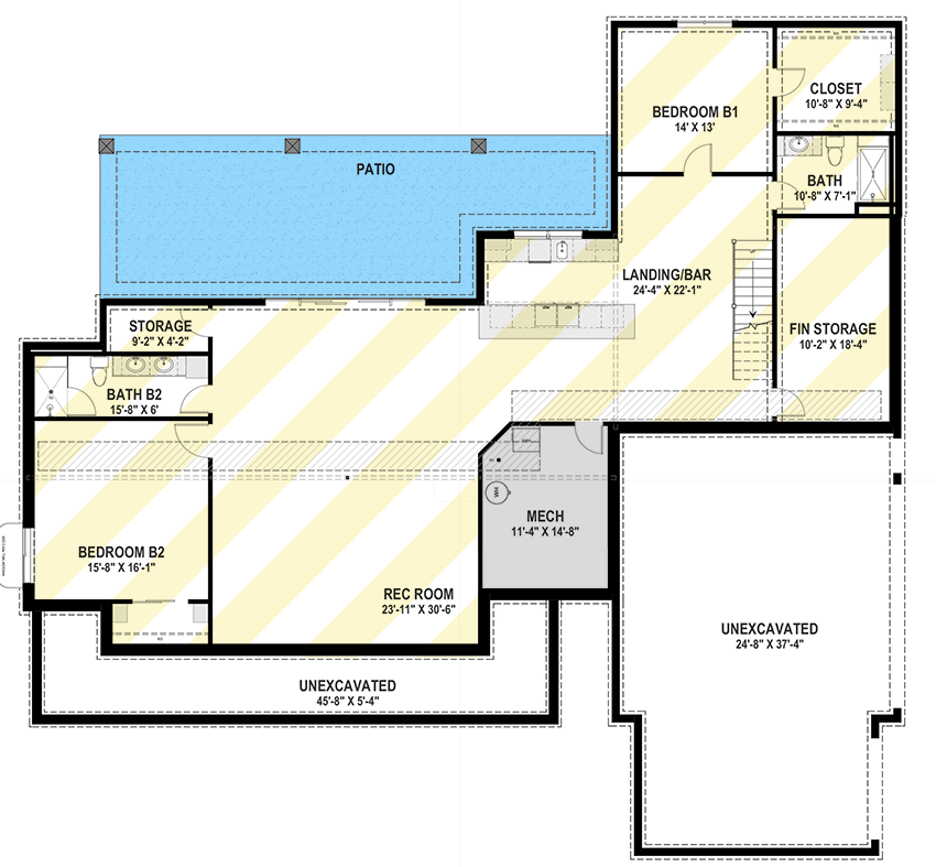
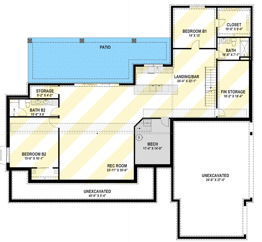
Optional Lower Level
962 sq. ft.
Bonus
606 sq. ft.
Covered Patio
557 sq. ft.
Bedrooms
3, 4, or 5
Full bathrooms
4, 5, or 6
Standard Foundations
Basement, Crawl, Slab, Walkout
Exterior Walls
2x6
Width
79' 0"
Depth
75' 0"
Max Ridge Height
25' 11"
Type
Attached, Standard
Area
933 sq. ft.
Count
3 Cars
Entry Location
Side
Lower Level
9'
First Floor
10'
Primary Pitch
9 on 12
Framing Type
Truss
Total Heated Area
2,591 sq. ft.
1st Floor
2,591 sq. ft.
Optional Lower Level
962 sq. ft.
Bonus
606 sq. ft.
Covered Patio
557 sq. ft.
Bedrooms
3, 4, or 5
Full bathrooms
4, 5, or 6
Standard Foundations
Basement, Crawl, Slab, Walkout
Exterior Walls
2x6
Width
79' 0"
Depth
75' 0"
Max Ridge Height
25' 11"
Type
Attached, Standard
Area
933 sq. ft.
Count
3 Cars
Entry Location
Side
Lower Level
9'
First Floor
10'
Primary Pitch
9 on 12
Framing Type
Truss