



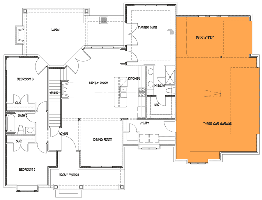
Total Heated Area
1,486 sq. ft.
1st Floor
1,486 sq. ft.
Bonus
513 sq. ft.
Porch, Front
138 sq. ft.
Lanai
309 sq. ft.
Bedrooms
3
Full bathrooms
2
Standard Foundations
Slab
Exterior Walls
2x4
Optional Type(s)
2x6
Width
68' 11"
Depth
51' 0"
Max Ridge Height
26' 7"
Type
Attached
Area
603 sq. ft.
Count
2 or 3 Cars
Entry Location
Side
First Floor
10'
Second Floor
8'
Room
Ceiling Type
Height
Master Bedroom
Tray
10' 0''
Bedroom 2
Flat
9' 0''
Primary Pitch
12 on 12
Secondary Pitch
3 on 12
Framing Type
Stick
Total Heated Area
1,486 sq. ft.
1st Floor
1,486 sq. ft.
Bonus
513 sq. ft.
Porch, Front
138 sq. ft.
Lanai
309 sq. ft.
Bedrooms
3
Full bathrooms
2
Standard Foundations
Slab
Exterior Walls
2x4
Optional Type(s)
2x6
Width
68' 11"
Depth
51' 0"
Max Ridge Height
26' 7"
Type
Attached
Area
603 sq. ft.
Count
2 or 3 Cars
Entry Location
Side
First Floor
10'
Second Floor
8'
Room
Ceiling Type
Height
Master Bedroom
Tray
10' 0''
Bedroom 2
Flat
9' 0''
Primary Pitch
12 on 12
Secondary Pitch
3 on 12
Framing Type
Stick