


Total Heated Area
4,580 sq. ft.
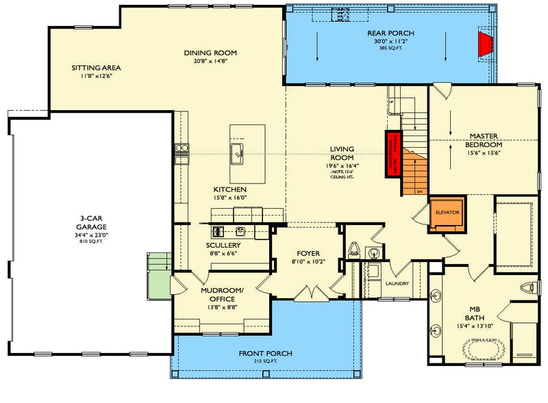
1st Floor
2,250 sq. ft.
2nd Floor
2,330 sq. ft.
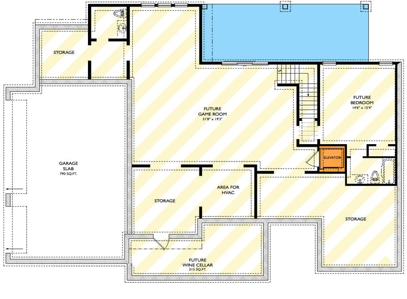
Optional Lower Level
2,225 sq. ft.
Bonus
295 sq. ft.
Porch, Front
215 sq. ft.
Porch, Rear
385 sq. ft.
Porch, Combined
600 sq. ft.
Deck & Porch
600 sq. ft.
Storage
597 sq. ft.
Bedrooms
4
Full bathrooms
4
Half bathrooms
1
Standard Foundations
Walkout
Exterior Walls
2x4
Optional Type(s)
2x6
Width
76' 0"
Depth
53' 2"
Max Ridge Height
32' 8"
Type
Attached
Area
810 sq. ft.
Count
3 Cars
Entry Location
Side
Lower Level
12' 1"
First Floor
10' 1"
Second Floor
9' 9"
Room
Ceiling Type
Height
Living Room
Raised
0' 0''
Master Bedroom
Vaulted
0' 0''
Primary Pitch
12 on 12
Framing Type
Stick Or Truss
Total Heated Area
4,580 sq. ft.
1st Floor
2,250 sq. ft.
2nd Floor
2,330 sq. ft.
Optional Lower Level
2,225 sq. ft.
Bonus
295 sq. ft.
Porch, Front
215 sq. ft.
Porch, Rear
385 sq. ft.
Porch, Combined
600 sq. ft.
Deck & Porch
600 sq. ft.
Storage
597 sq. ft.
Bedrooms
4
Full bathrooms
4
Half bathrooms
1
Standard Foundations
Walkout
Exterior Walls
2x4
Optional Type(s)
2x6
Width
76' 0"
Depth
53' 2"
Max Ridge Height
32' 8"
Type
Attached
Area
810 sq. ft.
Count
3 Cars
Entry Location
Side
Lower Level
12' 1"
First Floor
10' 1"
Second Floor
9' 9"
Room
Ceiling Type
Height
Living Room
Raised
0' 0''
Master Bedroom
Vaulted
0' 0''
Primary Pitch
12 on 12
Framing Type
Stick Or Truss