


Total Heated Area
3,864 sq. ft.
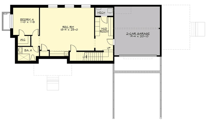
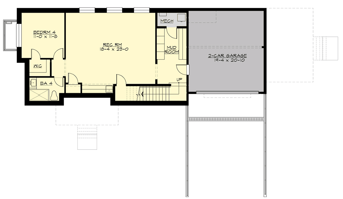
Lower Level
1,054 sq. ft.
1st Floor
1,506 sq. ft.
2nd Floor
1,304 sq. ft.
Bedrooms
4 or 5
Full bathrooms
4
Standard Foundations
Daylight
Exterior Walls
2x6
Width
76' 0"
Depth
30' 0"
Max Ridge Height
22' 2"
Type
Drive Under
Area
440 sq. ft.
Count
2 Cars
Entry Location
Front
Lower Level
9'
First Floor
10'
Second Floor
9'
Primary Pitch
0 on 12
Secondary Pitch
3 on 12
Framing Type
Truss
Total Heated Area
3,864 sq. ft.
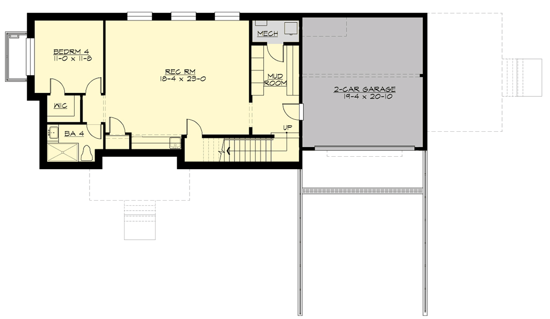
Lower Level
1,054 sq. ft.
1st Floor
1,506 sq. ft.
2nd Floor
1,304 sq. ft.
Bedrooms
4 or 5
Full bathrooms
4
Standard Foundations
Daylight
Exterior Walls
2x6
Width
76' 0"
Depth
30' 0"
Max Ridge Height
22' 2"
Type
Drive Under
Area
440 sq. ft.
Count
2 Cars
Entry Location
Front
Lower Level
9'
First Floor
10'
Second Floor
9'
Primary Pitch
0 on 12
Secondary Pitch
3 on 12
Framing Type
Truss