

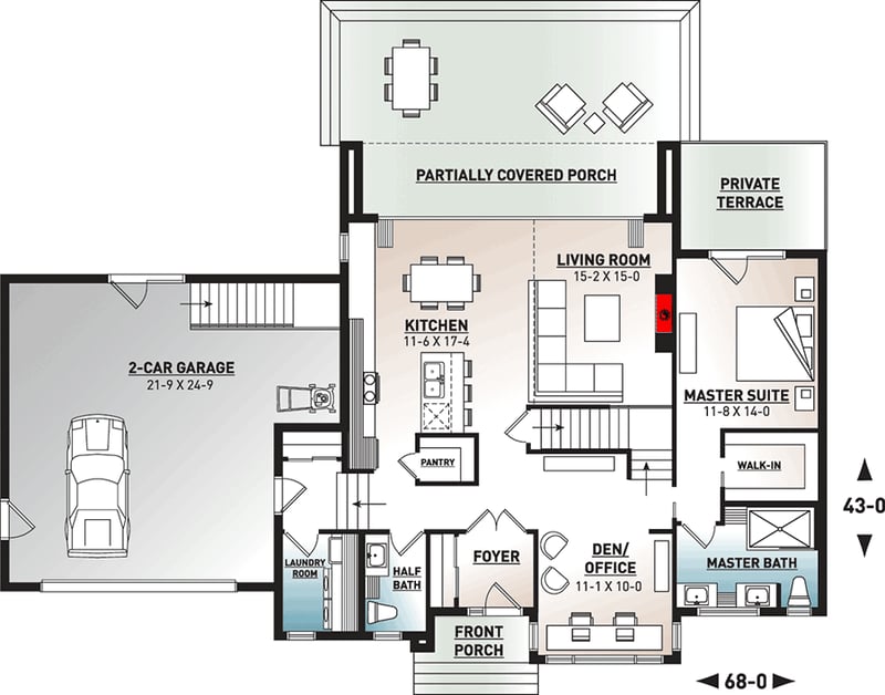
Total Heated Area
2,142 sq. ft.
1st Floor
1,446 sq. ft.
2nd Floor
696 sq. ft.
Basement Unfinished
1,326 sq. ft.
Entry
148 sq. ft.
Bedrooms
4
Full bathrooms
2
Half bathrooms
1
Standard Foundations
Basement
Exterior Walls
2x6
Width
68' 0"
Depth
43' 0"
Max Ridge Height
22' 8"
Type
Attached
Area
653 sq. ft.
Count
2 Cars
Entry Location
Front
First Floor
9'
Second Floor
8'
Room
Ceiling Type
Height
Living Room
Flat
18' 4''
Framing Type
Truss
Total Heated Area
2,142 sq. ft.
1st Floor
1,446 sq. ft.
2nd Floor
696 sq. ft.
Basement Unfinished
1,326 sq. ft.
Entry
148 sq. ft.
Bedrooms
4
Full bathrooms
2
Half bathrooms
1
Standard Foundations
Basement
Exterior Walls
2x6
Width
68' 0"
Depth
43' 0"
Max Ridge Height
22' 8"
Type
Attached
Area
653 sq. ft.
Count
2 Cars
Entry Location
Front
First Floor
9'
Second Floor
8'
Room
Ceiling Type
Height
Living Room
Flat
18' 4''
Framing Type
Truss