

Total Heated Area
2,087 sq. ft.
1st Floor
292 sq. ft.
2nd Floor
1,795 sq. ft.
Porch, Combined
473 sq. ft.
Deck
1,931 sq. ft.
Workshop
233 sq. ft.
Bedrooms
2
Full bathrooms
3
Standard Foundations
Slab
Exterior Walls
2x6
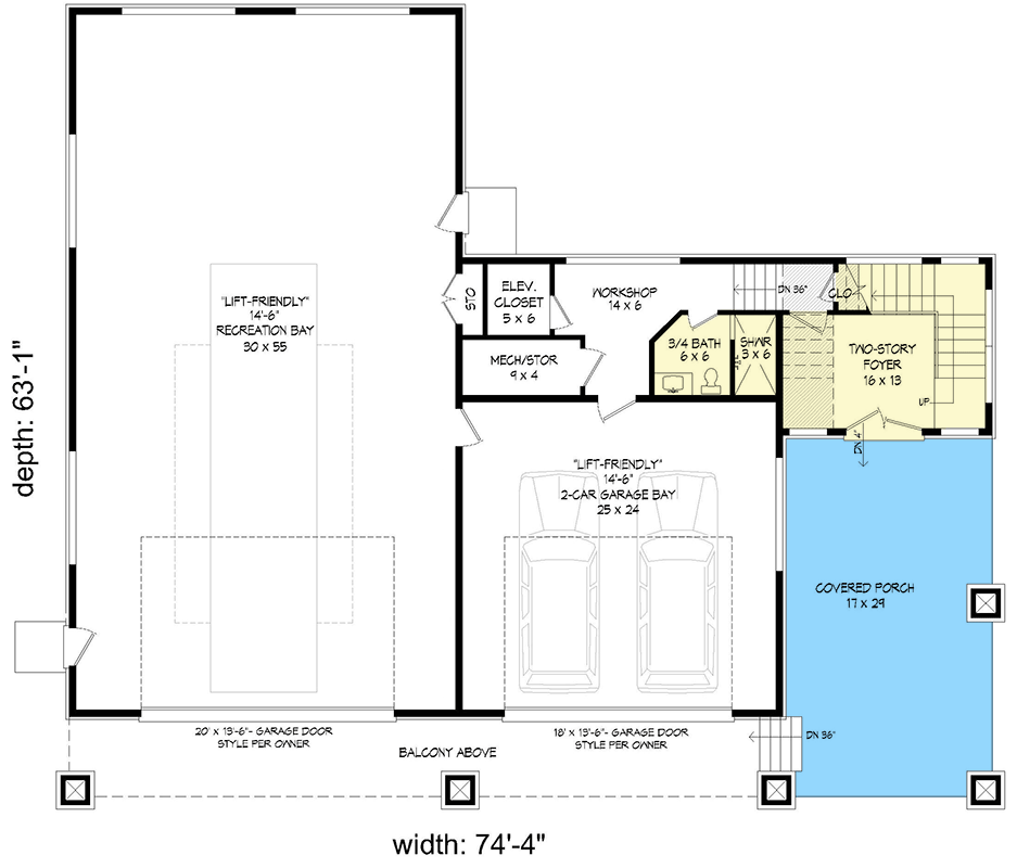
Width
74' 4"
Depth
63' 1"
Max Ridge Height
45' 1"
Type
Attached, RV Garage, Drive Under
Area
2372 sq. ft.
Count
4 Cars
Entry Location
Front
First Floor
9'
Second Floor
19' 8"
Primary Pitch
3 on 12
Framing Type
Truss
Total Heated Area
2,087 sq. ft.
1st Floor
292 sq. ft.
2nd Floor
1,795 sq. ft.
Porch, Combined
473 sq. ft.
Deck
1,931 sq. ft.
Workshop
233 sq. ft.
Bedrooms
2
Full bathrooms
3
Standard Foundations
Slab
Exterior Walls
2x6
Width
74' 4"
Depth
63' 1"
Max Ridge Height
45' 1"
Type
Attached, RV Garage, Drive Under
Area
2372 sq. ft.
Count
4 Cars
Entry Location
Front
First Floor
9'
Second Floor
19' 8"
Primary Pitch
3 on 12
Framing Type
Truss