Exclusive



Total Heated Area
3,814 sq. ft.
1st Floor
1,935 sq. ft.
2nd Floor
1,879 sq. ft.
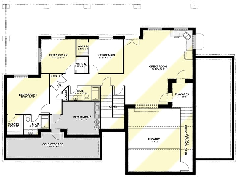
Optional Lower Level
2,489 sq. ft.
Porch, Combined
428 sq. ft.
Bedrooms
4, 5, 6, or 7
Full bathrooms
2, 3, or 4
Half bathrooms
1
Standard Foundations
Walkout
Exterior Walls
2x6
Width
80' 6"
Depth
59' 8"
Max Ridge Height
34' 4"
Type
Attached
Area
1147 sq. ft.
Count
3 Cars
Entry Location
Front
Lower Level
10'
First Floor
10'
Second Floor
9'
Primary Pitch
8 on 12
Secondary Pitch
3 on 12
Framing Type
Truss
Total Heated Area
3,814 sq. ft.
1st Floor
1,935 sq. ft.
2nd Floor
1,879 sq. ft.
Optional Lower Level
2,489 sq. ft.
Porch, Combined
428 sq. ft.
Bedrooms
4, 5, 6, or 7
Full bathrooms
2, 3, or 4
Half bathrooms
1
Standard Foundations
Walkout
Exterior Walls
2x6
Width
80' 6"
Depth
59' 8"
Max Ridge Height
34' 4"
Type
Attached
Area
1147 sq. ft.
Count
3 Cars
Entry Location
Front
Lower Level
10'
First Floor
10'
Second Floor
9'
Primary Pitch
8 on 12
Secondary Pitch
3 on 12
Framing Type
Truss