

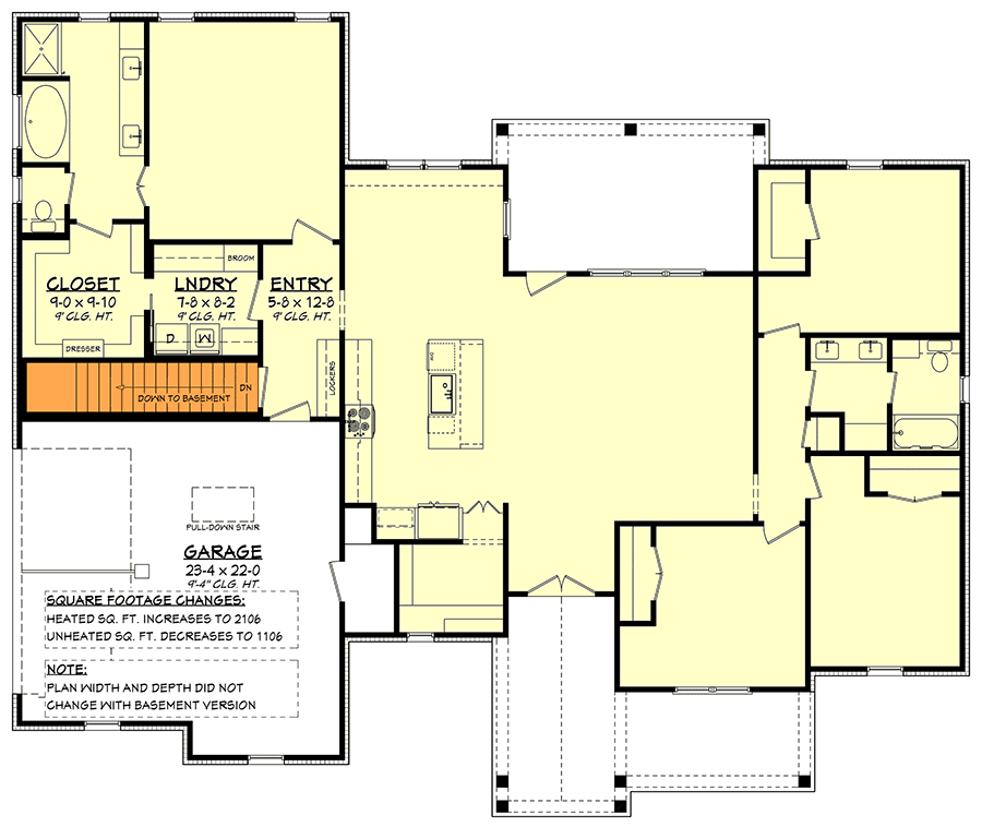
Total Heated Area
2,092 sq. ft.
1st Floor
2,092 sq. ft.
Porch, Front
237 sq. ft.
Porch, Rear
200 sq. ft.
Storage
30 sq. ft.
Bedrooms
3 or 4
Full bathrooms
2
Standard Foundations
Slab
Exterior Walls
2x4
Optional Type(s)
2x6
Width
69' 6"
Depth
58' 4"
Type
Attached
Area
653 sq. ft.
Count
2 Cars
Entry Location
Side
First Floor
9'
Primary Pitch
9 on 12
Secondary Pitch
12 on 12
Framing Type
Stick
Total Heated Area
2,092 sq. ft.
1st Floor
2,092 sq. ft.
Porch, Front
237 sq. ft.
Porch, Rear
200 sq. ft.
Storage
30 sq. ft.
Bedrooms
3 or 4
Full bathrooms
2
Standard Foundations
Slab
Exterior Walls
2x4
Optional Type(s)
2x6
Width
69' 6"
Depth
58' 4"
Type
Attached
Area
653 sq. ft.
Count
2 Cars
Entry Location
Side
First Floor
9'
Primary Pitch
9 on 12
Secondary Pitch
12 on 12
Framing Type
Stick