


Total Heated Area
3,506 sq. ft.
1st Floor
1,769 sq. ft.
2nd Floor
1,737 sq. ft.
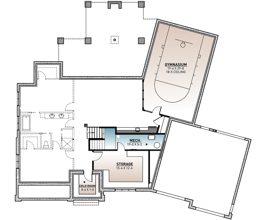
Optional Lower Level
1,769 sq. ft.
Bonus
636 sq. ft.
Bedrooms
4, 5, or 6
Full bathrooms
2 or 3
Half bathrooms
1
Standard Foundations
Basement
Exterior Walls
2x6
Width
79' 0"
Depth
67' 0"
Max Ridge Height
33' 0"
Type
Attached
Count
2 Cars
Entry Location
Front
Lower Level
8'
First Floor
9'
Second Floor
8'
Framing Type
Truss
Total Heated Area
3,506 sq. ft.
1st Floor
1,769 sq. ft.
2nd Floor
1,737 sq. ft.
Optional Lower Level
1,769 sq. ft.
Bonus
636 sq. ft.
Bedrooms
4, 5, or 6
Full bathrooms
2 or 3
Half bathrooms
1
Standard Foundations
Basement
Exterior Walls
2x6
Width
79' 0"
Depth
67' 0"
Max Ridge Height
33' 0"
Type
Attached
Count
2 Cars
Entry Location
Front
Lower Level
8'
First Floor
9'
Second Floor
8'
Framing Type
Truss