


Total Heated Area
3,314 sq. ft.
1st Floor
1,672 sq. ft.
2nd Floor
1,642 sq. ft.
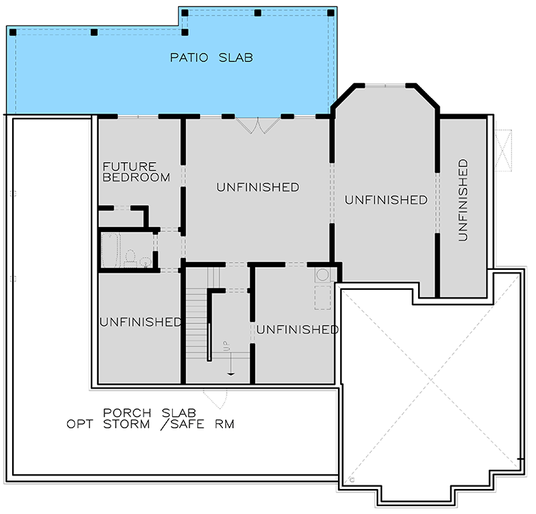
Basement Unfinished
1,672 sq. ft.
Bonus
284 sq. ft.
Bedrooms
4, 5, or 6
Full bathrooms
4
Standard Foundations
Walkout
Exterior Walls
2x4
Optional Type(s)
2x6
Width
64' 4"
Depth
67' 10"
Max Ridge Height
31' 7"
Type
Attached
Area
603 sq. ft.
Count
2 Cars
Entry Location
Side
First Floor
9'
Second Floor
8'
Total Heated Area
3,314 sq. ft.
1st Floor
1,672 sq. ft.
2nd Floor
1,642 sq. ft.
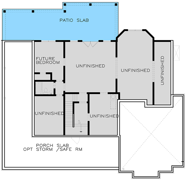
Basement Unfinished
1,672 sq. ft.
Bonus
284 sq. ft.
Bedrooms
4, 5, or 6
Full bathrooms
4
Standard Foundations
Walkout
Exterior Walls
2x4
Optional Type(s)
2x6
Width
64' 4"
Depth
67' 10"
Max Ridge Height
31' 7"
Type
Attached
Area
603 sq. ft.
Count
2 Cars
Entry Location
Side
First Floor
9'
Second Floor
8'