

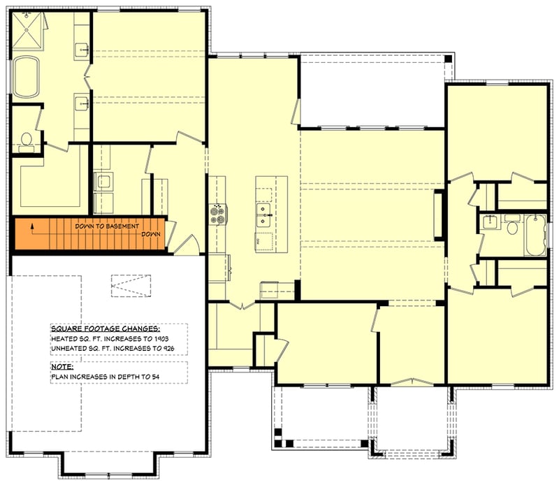
Total Heated Area
1,883 sq. ft.
1st Floor
1,883 sq. ft.
Porch, Front
154 sq. ft.
Porch, Rear
142 sq. ft.
Bedrooms
3 or 4
Full bathrooms
2
Standard Foundations
Slab
Exterior Walls
2x4
Optional Type(s)
2x6
Width
62' 6"
Depth
51' 8"
Max Ridge Height
18' 2"
Type
Standard
Area
551 sq. ft.
Count
2 Cars
Entry Location
Side
First Floor
9'
Primary Pitch
6 on 12
Secondary Pitch
4 on 12
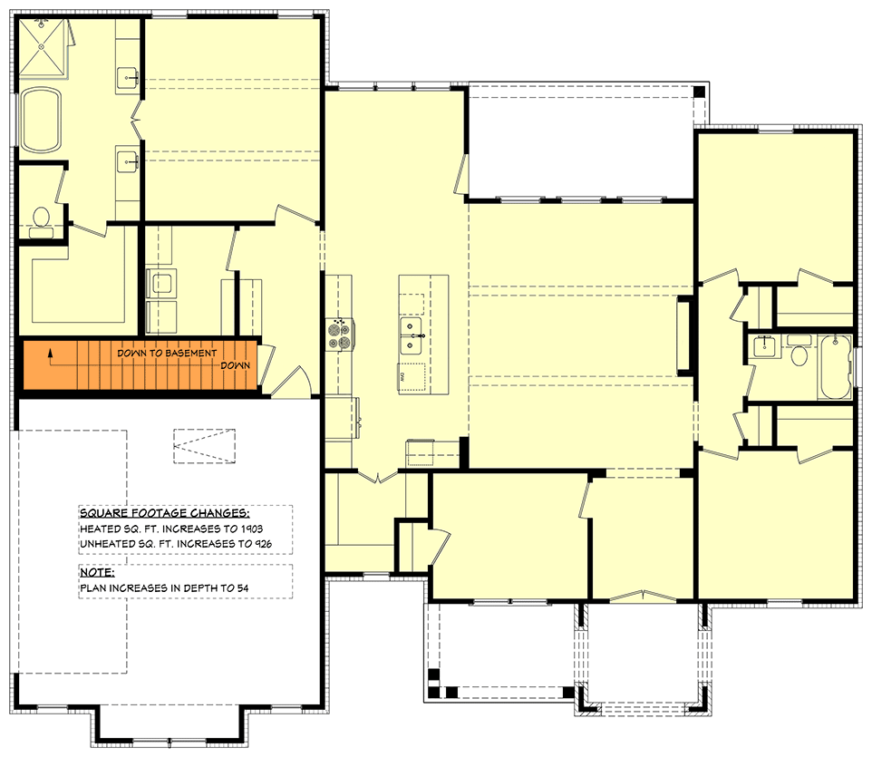
Total Heated Area
1,883 sq. ft.
1st Floor
1,883 sq. ft.
Porch, Front
154 sq. ft.
Porch, Rear
142 sq. ft.
Bedrooms
3 or 4
Full bathrooms
2
Standard Foundations
Slab
Exterior Walls
2x4
Optional Type(s)
2x6
Width
62' 6"
Depth
51' 8"
Max Ridge Height
18' 2"
Type
Standard
Area
551 sq. ft.
Count
2 Cars
Entry Location
Side
First Floor
9'
Primary Pitch
6 on 12
Secondary Pitch
4 on 12