LogoLogo TaglineLogo Tagline
Loading...
Plan 23655JD

Northwest Contemporary Blend

Heated S.F.
4,353
Beds
4 - 6
Baths
4 - 5
Stories
2
Cars
3

Floor Plan

Plan 23655JD

Main Level
Main Level
Second Floor
Second Floor
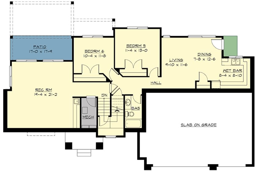
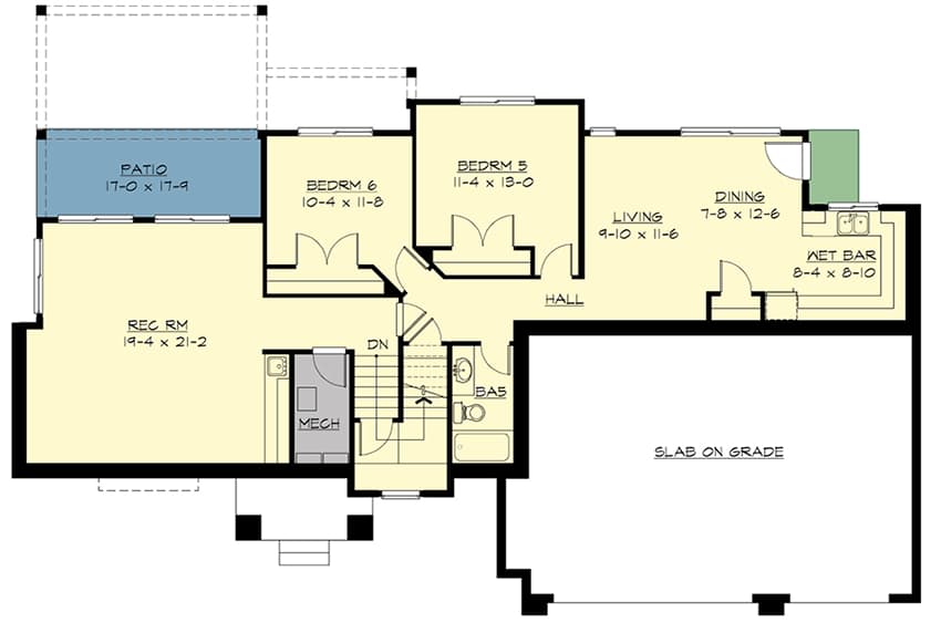
Lower Level
Lower Level

Plan 23655JD

M-F 9am-5pm EST |

1-203-761-8500

Main Level

Plan 23655JD: Northwest Contemporary Blend - Floor Plan - Main Level - Contemporary, Craftsman, Northwest

Second Floor

Plan 23655JD: Northwest Contemporary Blend - Floor Plan - Second Floor - Contemporary, Craftsman, Northwest

Lower Level

Plan 23655JD: Northwest Contemporary Blend - Floor Plan - Lower Level - Contemporary, Craftsman, Northwest

Plan Details

  • A pleasing combination of Northwest and Contemporary styles highlight this lovely house plan.
  • Stretching 73' wide, this home gives you lots of big, open rooms that connect to one another with beautiful sight lines.
  • For outdoor space, you have a choice of a covered porch, a sunny deck or a second floor balcony off the master suite.
  • There's even an optional finished lower level with an in-law apartment and a huge rec room.
  • An open rail hallway on the upper floor lets you look down into the foyer below.
  • This well-designed second floor offers a laundry room too - right where most of the laundry is generated.
  • The three car garage has staggered bays for an interesting look, plus extra storage.
  • NOTE:  Additional fees apply when building in the State of Washington. Contact us for more information.

What's Included

  • Cover Sheet - The cover sheet includes the general notes and building code information, design standards and structural materials specifications required to construct your home.
  • Schedule Sheet - The schedule sheet includes the roof and foundation ventilation schedules, insulation and vapor barrier specifications, and exhaust fan ventilation schedule.
  • Detail Sheet - The detail sheet shows building components at large scale as required to explain construction of footings, foundation walls, concrete slabs, framed floors and walls, posts, beams, insulation, eaves, roofs, vents, stairs, skylights, and connections.
  • Foundation Plan Sheet - The foundation plan sheet shows the layout of the crawl space, walk-out basement or slab foundation. The foundation plan includes all necessary notes, dimensions, concrete walls, footing pads, posts, beams, bearing walls, crawlspace vents, footing schedule, steel reinforcing, and structural information. If you require a different foundation type, please contact us for modifications to your plan.
  • Floor Plan Sheet - Floor plans are horizontal cuts through each floor level of the home, usually at 5' above the floor. The floor plan shows the location of interior and exterior walls, doors, windows, stairs, closets, cabinets, flooring, appliances, plumbing fixtures, fireplaces, posts and beams. Floor plans also indicate vaulted, coffered, or box beam ceilings, cased openings and areas with ceiling soffits.
  • Roof Framing Plan Sheet - The roof framing plan shows the geometry of the hips, ridges, valleys, dormers, roof pitches, wall and plate heights, and overhangs. The plan also shows all individual roof framing members, trusses, rafters, beams, skylights, roof vents, gutters, downspouts, skylights, bearing walls under framing members, and point loads.
  • Elevation Sheet - Exterior elevations show all four sides of the house, describing the roofing, siding, and trim materials, doors, windows, roof pitches, skylights, gutters, chimneys, wall heights, finish grade and overall building height. 
  • Building Section Sheet - Building sections are vertical cuts through the house from the roof to the foundation. The sections illustrate the construction sequence from bottom to top starting with excavation, proceeding up through the foundation, drainage, wall and floor framing, stair framing, roof framing, windows, doors, venting, and exterior and interior finishes. Wall plate heights for each floor are also delineated.
View Sample Plan

What's Not Included

  • Electrical Plan - handled by your subcontractor to match your individual needs
  • Architectural or Engineering Stamp - handled locally if required
  • Site Plan - handled locally when required
  • Mechanical Drawings (location of heating and air equipment and duct work) - your subcontractors handle this
  • Plumbing Drawings (drawings showing the actual plumbing pipe sizes and locations) - your subcontractors handle this
  • Energy calculations - handled locally when required

Starting at

Loading...
Price Match Guarantee
What's included?

FORMAT & LICENSE

Choose an option

$0

Not sure what to choose?

Pointer link icon

FOUNDATION

Choose an option

+$0

OPTIONS

Choose Additional Options

+$0

Loading...

Modify this Plan

Receive a free modification quote within 3 business days.

Loading...

Start with a Cost Report

Calculate the cost to build & furnish your home.

Loading...
Loading...

Square Footage Breakdown

Total Heated Area

4,353 sq. ft.

Lower Level

1,442 sq. ft.

1st Floor

1,432 sq. ft.

2nd Floor

1,479 sq. ft.

Deck

126 sq. ft.

Covered Patio

302 sq. ft.

Beds/Baths

Bedrooms

4, 5, or 6

Full bathrooms

4 or 5

Foundation Type

Standard Foundations

Walkout

Exterior Walls

Exterior Walls

2x6

Dimensions

Width

73' 0"

Depth

49' 0"

Max Ridge Height

23' 6"

Garage

Type

Attached

Area

793 sq. ft.

Count

3 Cars

Entry Location

Front

Ceiling Heights

Lower Level

9'

First Floor

10'

Second Floor

9'

Room

Ceiling Type

Height

Master Bedroom

Vaulted

0' 0''

Roof Details

Primary Pitch

4 on 12

Framing Type

Truss

Architectural Style

Contemporary

Square Footage Breakdown

Total Heated Area

4,353 sq. ft.

Lower Level

1,442 sq. ft.

1st Floor

1,432 sq. ft.

2nd Floor

1,479 sq. ft.

Deck

126 sq. ft.

Covered Patio

302 sq. ft.

Beds/Baths

Bedrooms

4, 5, or 6

Full bathrooms

4 or 5

Foundation Type

Standard Foundations

Walkout

Exterior Walls

Exterior Walls

2x6

Dimensions

Width

73' 0"

Depth

49' 0"

Max Ridge Height

23' 6"

Garage

Type

Attached

Area

793 sq. ft.

Count

3 Cars

Entry Location

Front

Ceiling Heights

Lower Level

9'

First Floor

10'

Second Floor

9'

Room

Ceiling Type

Height

Master Bedroom

Vaulted

0' 0''

Roof Details

Primary Pitch

4 on 12

Framing Type

Truss

* Please note that all sale prices and promotions featured on our website are subject to change without prior notice. While we strive to provide accurate and up-to-date information, occasional discrepancies may occur due to factors beyond our control. We encourage you to verify all details, including pricing and availability, before making any purchase. Exclusions or restrictions may apply to specific promotions. We reserve the right to modify or cancel any sale at our discretion. Thank you for your understanding and happy shopping!Let's go back to the top.