

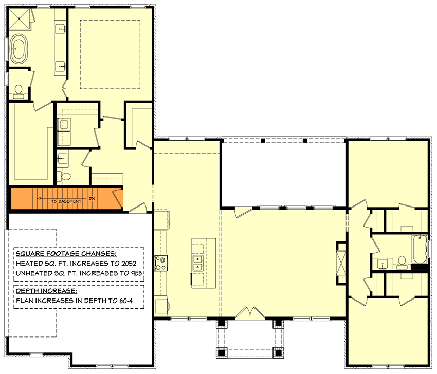
Total Heated Area
1,998 sq. ft.
1st Floor
1,998 sq. ft.
Porch, Front
63 sq. ft.
Porch, Rear
236 sq. ft.
Porch, Combined
299 sq. ft.
Storage
30 sq. ft.
Bedrooms
3
Full bathrooms
2
Half bathrooms
1
Standard Foundations
Slab
Exterior Walls
2x4
Optional Type(s)
2x6
Width
70' 10"
Depth
56' 0"
Max Ridge Height
21' 0"
Type
Attached
Area
606 sq. ft.
Count
2 Cars
Entry Location
Side
Lower Level
9' 4"
First Floor
9'
Primary Pitch
8 on 12
Secondary Pitch
3 on 12
Framing Type
Stick
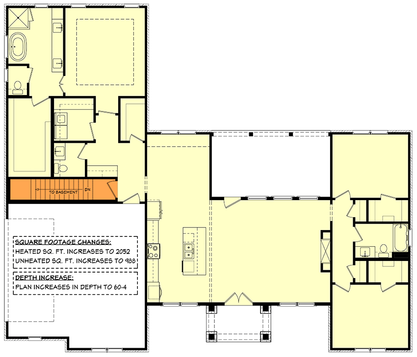
Total Heated Area
1,998 sq. ft.
1st Floor
1,998 sq. ft.
Porch, Front
63 sq. ft.
Porch, Rear
236 sq. ft.
Porch, Combined
299 sq. ft.
Storage
30 sq. ft.
Bedrooms
3
Full bathrooms
2
Half bathrooms
1
Standard Foundations
Slab
Exterior Walls
2x4
Optional Type(s)
2x6
Width
70' 10"
Depth
56' 0"
Max Ridge Height
21' 0"
Type
Attached
Area
606 sq. ft.
Count
2 Cars
Entry Location
Side
Lower Level
9' 4"
First Floor
9'
Primary Pitch
8 on 12
Secondary Pitch
3 on 12
Framing Type
Stick