LogoLogo TaglineLogo Tagline
Loading...
Plan 270042AF

One-Story Modern Farmhouse Under 1,500 Square Feet with Vaulted Interior

Heated S.F.
1,458
Beds
3
Baths
2
Stories
1
Cars
2

Floor Plan

Plan 270042AF

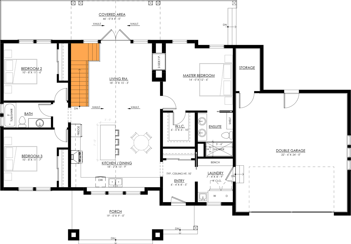
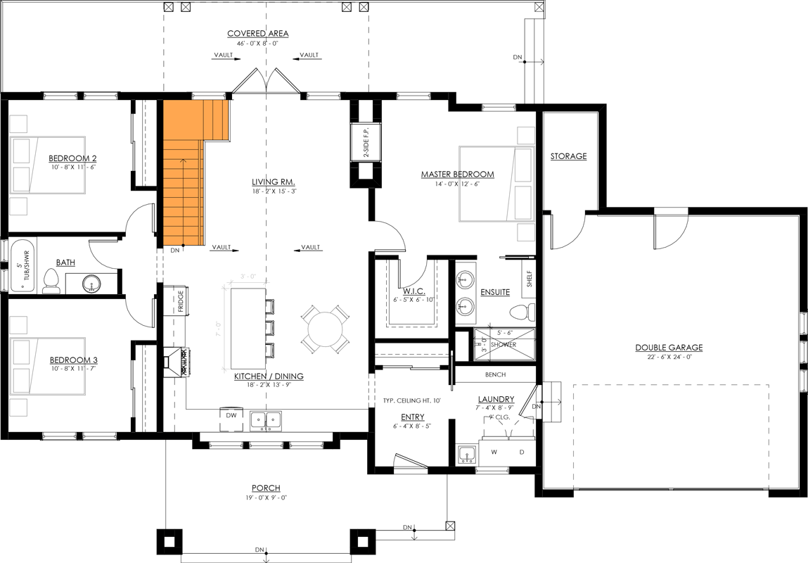
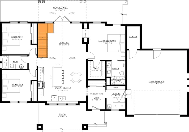
Main Level - Basement Stairs
Main Level - Basement Stairs
Main Level
Main Level

Plan 270042AF

M-F 9am-5pm EST |

1-203-761-8500

Main Level - Basement Stairs

Plan 270042AF: One-Story Modern Farmhouse Under 1,500 Square Feet with Vaulted Interior - Floor Plan - Main Level - Basement Stairs - Modern Farmhouse, Mountain, New American, Ranch

Main Level

Plan 270042AF: One-Story Modern Farmhouse Under 1,500 Square Feet with Vaulted Interior - Floor Plan - Main Level - Modern Farmhouse, Mountain, New American, Ranch

Plan Details

  • This one-story modern farmhouse plan has a board and batten exterior and a clever entry porch that gives you an effective 19' by 9' outdoor living area space as well as provide cover while fumbling for keys in the rain.
  • The front door leads to a private entry with the mudroom and garage entrance to your right and the vaulted front-to-back living space to your left.
  • French doors are centered on the back wall and take outside where the vaulted ceiling continues on the covered area. Open decks are on either side, giving you more space from which to enjoy the fresh air.
  • The master bedroom shares a 2-sided fireplace with the living room and has a roomy walk-in closet. Across the home, two bedrooms are separated by a shared bathroom.

What's Included

  • Foundation Plan
  • Floor Plan(s) with Door and Window Opening Sizes
  • Roof Plan showing pitches, valleys, ridges
  • Exterior Elevations 
  • Building Section
  • Typical Construction Details/Sections

What's Not Included

  • Architectural or Engineering Stamp - handled locally if required
  • Site Plan - handled locally when required
  • Framing - layouts with beam sizes and locations
  • Electrical plan
  • Plumbing Details
  • Mechanical Drawings (location of heating and air equipment and duct work)
  • Energy calculations - handled locally when required
  • Renderings, photography, or marketing imagery

Starting at

Loading...
Price Match Guarantee
What's included?

FORMAT & LICENSE

Choose an option

$0

Not sure what to choose?

Pointer link icon

FOUNDATION

Choose an option

+$0

OPTIONS

Choose Additional Options

+$0

Loading...

Modify this Plan

Receive a free modification quote within 3 business days.

Loading...

Start with a Cost Report

Calculate the cost to build & furnish your home.

Loading...
Loading...

Square Footage Breakdown

Total Heated Area

1,458 sq. ft.

1st Floor

1,458 sq. ft.

Porch, Front

211 sq. ft.

Deck

384 sq. ft.

Deck & Porch

595 sq. ft.

Beds/Baths

Bedrooms

3

Full bathrooms

2

Foundation Type

Standard Foundations

Crawl

Exterior Walls

Exterior Walls

2x6

Dimensions

Width

70' 0"

Depth

43' 0"

Max Ridge Height

24' 3"

Garage

Type

Attached

Area

627 sq. ft.

Count

2 Cars

Entry Location

Front

Ceiling Heights

First Floor

10'

Room

Ceiling Type

Height

Great Room

Vaulted

10' 0''

Laundry Room

9' 0''

Roof Details

Primary Pitch

12 on 12

Secondary Pitch

9 on 12

Framing Type

Truss

Architectural Style

Modern Farmhouse

Plan Collections

Square Footage Breakdown

Total Heated Area

1,458 sq. ft.

1st Floor

1,458 sq. ft.

Porch, Front

211 sq. ft.

Deck

384 sq. ft.

Deck & Porch

595 sq. ft.

Beds/Baths

Bedrooms

3

Full bathrooms

2

Foundation Type

Standard Foundations

Crawl

Exterior Walls

Exterior Walls

2x6

Dimensions

Width

70' 0"

Depth

43' 0"

Max Ridge Height

24' 3"

Garage

Type

Attached

Area

627 sq. ft.

Count

2 Cars

Entry Location

Front

Ceiling Heights

First Floor

10'

Room

Ceiling Type

Height

Great Room

Vaulted

10' 0''

Laundry Room

9' 0''

Roof Details

Primary Pitch

12 on 12

Secondary Pitch

9 on 12

Framing Type

Truss

Plan Collections

* Please note that all sale prices and promotions featured on our website are subject to change without prior notice. While we strive to provide accurate and up-to-date information, occasional discrepancies may occur due to factors beyond our control. We encourage you to verify all details, including pricing and availability, before making any purchase. Exclusions or restrictions may apply to specific promotions. We reserve the right to modify or cancel any sale at our discretion. Thank you for your understanding and happy shopping!Let's go back to the top.