LogoLogo TaglineLogo Tagline
Loading...
Plan 68419VR

Ranch House Plan with Vaulted Ceilings - 1200 Sq Ft

Heated S.F.
1,200
Beds
2 - 4
Baths
1 - 2
Stories
1
Client Photos

Floor Plan

Plan 68419VR

Main Floor
Main Floor

Plan 68419VR

M-F 9am-5pm EST |

1-203-761-8500

Main Floor

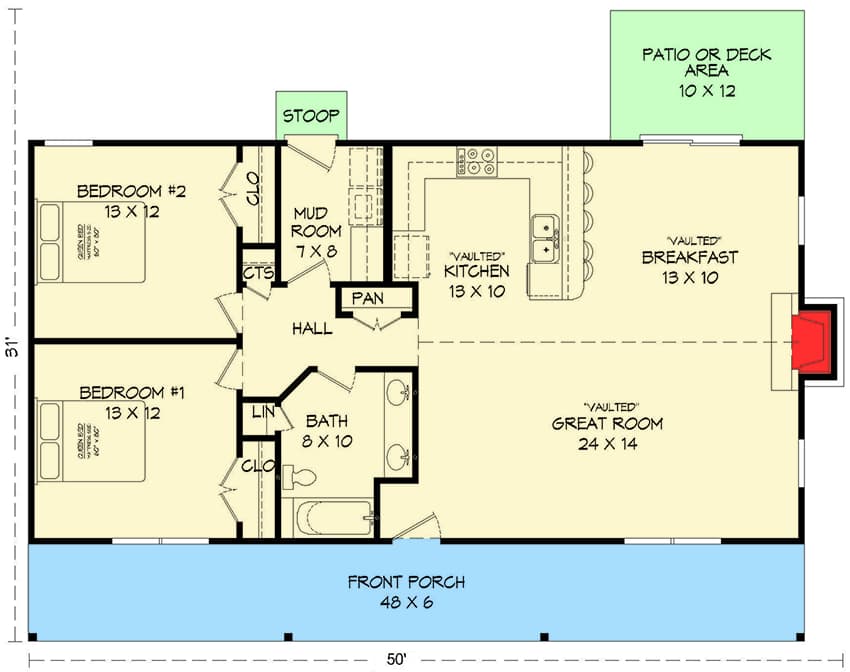
Plan 68419VR: Ranch House Plan with Vaulted Ceilings - 1200 Sq Ft - Floor Plan - Main Floor - Country, Ranch, Rustic, Traditional

Plan Details

  • A huge vaulted ceiling tops the great room, kitchen and breakfast nook of this Ranch house plan, uniting all three spaces.
  • Sliding glass door open to a back patio or deck area.
  • Each of the two bedrooms is a generous size and the hall bathroom that serves the house has two sinks.
  • Plenty of room for a rocking chair or two on the wide front porch!
  • Related Plans: Get an alternate layout with house plan 68881VR. Get a smaller version with house plan 68529VR (1,000 sq. ft.). Get a porch on the front and back with house plan 68863VR.
Build Gallery
See and hear from existing customers with real photos, videos, and reviews.
build gallery item - House Plan 68419VR Comes to Life in Idaho

House Plan 68419VR Comes to Life in Idaho

18

Photos

What's Included

  • Floor Plans: House plan drawings indicating dimensions for construction
  • Roof Plan: Drawings indicating roof slopes and unique conditions
  • Exterior Elevations: Drawings showing appearance and the types of materials used for the exterior finish and trim
  • Building Sections: Drawings cut through important locations in the structure
  • Construction Details: Drawings showing specific construction of building elements at a large scale
  • Kitchen and bath elevations (excluded on garage plans)
  • Electrical Plans: Basic electrical layout (suggested locations of fixtures, switches and outlets)
  • Foundation Plan: Dimensioned drawings describing specific foundation conditions for the structure
  • Building license: A single-use license for construction at one location only

View Sample Plan

What's Not Included

  • Architectural or Engineering Stamp - handled locally if required
  • Site Plan - handled locally when required
  • Mechanical Drawings (location of heating and air equipment and duct work) - your subcontractors handle this
  • Plumbing Drawings (drawings showing the actual plumbing pipe sizes and locations) - your subcontractors handle this
  • Energy calculations - handled locally when required

Starting at

Loading...
Price Match Guarantee
What's included?

FORMAT & LICENSE

Choose an option

$0

Not sure what to choose?

Pointer link icon

FOUNDATION

Choose an option

+$0

OPTIONS

Choose Additional Options

+$0

Loading...

Modify this Plan

Receive a free modification quote within 3 business days.

Loading...

Start with a Cost Report

Calculate the cost to build & furnish your home.

Loading...
Loading...

Square Footage Breakdown

Total Heated Area

1,200 sq. ft.

1st Floor

1,200 sq. ft.

Porch, Front

288 sq. ft.

Beds/Baths

Bedrooms

2, 3, or 4

Full bathrooms

1 or 2

Foundation Type

Standard Foundations

Slab

Exterior Walls

Exterior Walls

2x4

Optional Type(s)

2x6

Dimensions

Width

50' 0"

Depth

31' 0"

Max Ridge Height

15' 0"

Ceiling Heights

First Floor

8'

Roof Details

Primary Pitch

6 on 12

Framing Type

Stick

Plan Collections

Square Footage Breakdown

Total Heated Area

1,200 sq. ft.

1st Floor

1,200 sq. ft.

Porch, Front

288 sq. ft.

Beds/Baths

Bedrooms

2, 3, or 4

Full bathrooms

1 or 2

Foundation Type

Standard Foundations

Slab

Exterior Walls

Exterior Walls

2x4

Optional Type(s)

2x6

Dimensions

Width

50' 0"

Depth

31' 0"

Max Ridge Height

15' 0"

Ceiling Heights

First Floor

8'

Roof Details

Primary Pitch

6 on 12

Framing Type

Stick

Plan Collections

* Please note that all sale prices and promotions featured on our website are subject to change without prior notice. While we strive to provide accurate and up-to-date information, occasional discrepancies may occur due to factors beyond our control. We encourage you to verify all details, including pricing and availability, before making any purchase. Exclusions or restrictions may apply to specific promotions. We reserve the right to modify or cancel any sale at our discretion. Thank you for your understanding and happy shopping!Let's go back to the top.