Exclusive


Total Heated Area
2,221 sq. ft.
1st Floor
2,221 sq. ft.
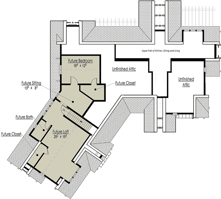
Bonus
931 sq. ft.
Porch, Front
241 sq. ft.
Porch, Rear
180 sq. ft.
Bedrooms
3 or 4
Full bathrooms
2 or 3
Standard Foundations
Slab
Exterior Walls
2x6
Width
87' 6"
Depth
82' 0"
Max Ridge Height
25' 3"
Type
Attached
Area
845 sq. ft.
Count
2 Cars
Entry Location
Side
First Floor
9'
Primary Pitch
10 on 12
Secondary Pitch
12 on 12
Framing Type
Stick and Truss
Total Heated Area
2,221 sq. ft.
1st Floor
2,221 sq. ft.
Bonus
931 sq. ft.
Porch, Front
241 sq. ft.
Porch, Rear
180 sq. ft.
Bedrooms
3 or 4
Full bathrooms
2 or 3
Standard Foundations
Slab
Exterior Walls
2x6
Width
87' 6"
Depth
82' 0"
Max Ridge Height
25' 3"
Type
Attached
Area
845 sq. ft.
Count
2 Cars
Entry Location
Side
First Floor
9'
Primary Pitch
10 on 12
Secondary Pitch
12 on 12
Framing Type
Stick and Truss