Exclusive


Total Heated Area
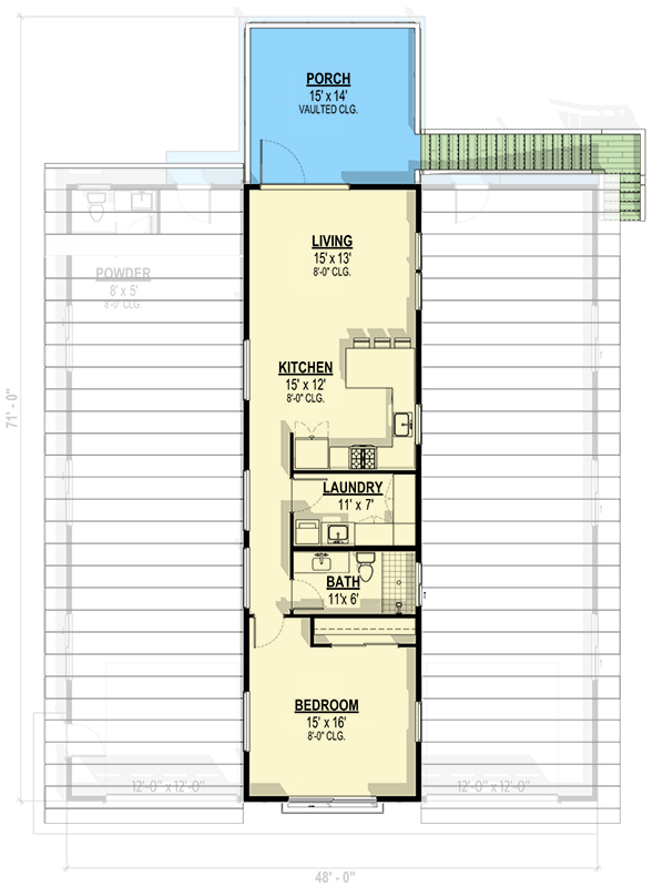
828 sq. ft.
2nd Floor
828 sq. ft.
Loft
828 sq. ft.
Porch, Rear
236 sq. ft.
Bedrooms
1
Full bathrooms
1
Standard Foundations
Monolithic Slab
Exterior Walls
2x6
Width
71' 10"
Depth
48' 0"
Max Ridge Height
29' 11"
Type
Detached, RV Garage
Area
2680 sq. ft.
Count
3 Cars
Entry Location
Front
First Floor
12'
Second Floor
8'
Primary Pitch
6 on 12
Total Heated Area
828 sq. ft.
2nd Floor
828 sq. ft.
Loft
828 sq. ft.
Porch, Rear
236 sq. ft.
Bedrooms
1
Full bathrooms
1
Standard Foundations
Monolithic Slab
Exterior Walls
2x6
Width
71' 10"
Depth
48' 0"
Max Ridge Height
29' 11"
Type
Detached, RV Garage
Area
2680 sq. ft.
Count
3 Cars
Entry Location
Front
First Floor
12'
Second Floor
8'
Primary Pitch
6 on 12