LogoLogo TaglineLogo Tagline
Loading...
Plan 68599VR

RV Garage with Living Space a Plus

Heated S.F.
1,200
Beds
1
Baths
2
Stories
2
Cars
2

Floor Plan

Plan 68599VR

Main Level
Main Level
2nd Floor
2nd Floor

Plan 68599VR

M-F 9am-5pm EST |

1-203-761-8500

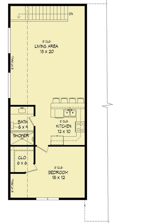
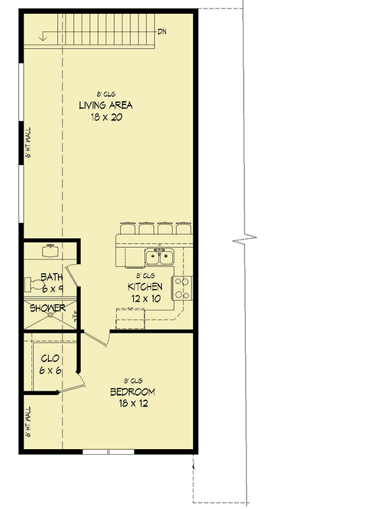
Main Level

Plan 68599VR: RV Garage with Living Space a Plus - Floor Plan - Main Level

2nd Floor

Plan 68599VR: RV Garage with Living Space a Plus - Floor Plan - 2nd Floor

Plan Details

  • Board and battan and siding combine to give this garage plan an attractive exterior.
  • The 18' by 50' bay will nicely hold your RV. The second bay holds your car or truck.
  • The back-left corner gives you a finished space complete with a bath, sauna and vault.
  • The upstairs gives you living space complete with a bedroom, kitchen and a living room.
  • Related Plans: Simplify with garage plans 68423VR68506VR (37' by 51') and 68564VR (51' by 40').

What's Included

  • Floor Plans: House plan drawings indicating dimensions for construction
  • Roof Plan: Drawings indicating roof slopes and unique conditions
  • Exterior Elevations: Drawings showing appearance and the types of materials used for the exterior finish and trim
  • Building Sections: Drawings cut through important locations in the structure
  • Construction Details: Drawings showing specific construction of building elements at a large scale
  • Kitchen and bath elevations (excluded on garage plans)
  • Electrical Plans: Basic electrical layout (suggested locations of fixtures, switches and outlets)
  • Foundation Plan: Dimensioned drawings describing specific foundation conditions for the structure
  • Building license: A single-use license for construction at one location only

View Sample Plan

What's Not Included

  • Architectural or Engineering Stamp - handled locally if required
  • Site Plan - handled locally when required
  • Mechanical Drawings (location of heating and air equipment and duct work) - your subcontractors handle this
  • Plumbing Drawings (drawings showing the actual plumbing pipe sizes and locations) - your subcontractors handle this
  • Energy calculations - handled locally when required
Starting at
Loading...
What's included?
Plan Set
Select...

Foundation
Select...

Options
Optional Add-Ons
+$0

Loading...
Price Match Guarantee
Cost to Build Report
Still deciding? Calculate the cost to build this house in your area.
Loading...
Customize This Plan
Need to make changes? We will get you a free price quote within 1 to 3 business days.
Cost to Furnish Report
Instant room-by-room estimates for your entire furniture & home decor plan, matched to your budget.
Loading...

Square Footage Breakdown

Total Heated Area

1,200 sq. ft.

1st Floor

385 sq. ft.

2nd Floor

815 sq. ft.

Beds/Baths

Bedrooms

1

Full bathrooms

2

Foundation Type

Standard Foundations

Slab

Exterior Walls

Exterior Walls

2x6

Dimensions

Width

37' 0"

Depth

51' 0"

Max Ridge Height

25' 0"

Garage

Type

Detached, RV Garage

Area

1412 sq. ft.

Count

2 Cars

Entry Location

Front

Ceiling Heights

First Floor

8'

Second Floor

8'

Roof Details

Primary Pitch

6 on 12

Framing Type

Stick Or Truss

Special Features

Master Suite - Upstairs

Square Footage Breakdown

Total Heated Area

1,200 sq. ft.

1st Floor

385 sq. ft.

2nd Floor

815 sq. ft.

Beds/Baths

Bedrooms

1

Full bathrooms

2

Foundation Type

Standard Foundations

Slab

Exterior Walls

Exterior Walls

2x6

Dimensions

Width

37' 0"

Depth

51' 0"

Max Ridge Height

25' 0"

Garage

Type

Detached, RV Garage

Area

1412 sq. ft.

Count

2 Cars

Entry Location

Front

Ceiling Heights

First Floor

8'

Second Floor

8'

Roof Details

Primary Pitch

6 on 12

Framing Type

Stick Or Truss

Special Features

* Please note that all sale prices and promotions featured on our website are subject to change without prior notice. While we strive to provide accurate and up-to-date information, occasional discrepancies may occur due to factors beyond our control. We encourage you to verify all details, including pricing and availability, before making any purchase. Exclusions or restrictions may apply to specific promotions. We reserve the right to modify or cancel any sale at our discretion. Thank you for your understanding and happy shopping!Let's go back to the top.