

Total Heated Area
2,120 sq. ft.
1st Floor
1,148 sq. ft.
2nd Floor
972 sq. ft.
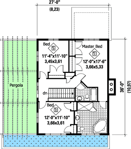
Bedrooms
3
Full bathrooms
2
Half bathrooms
1
Standard Foundations
Basement
Exterior Walls
2x6
Width
40' 0"
Depth
36' 0"
Max Ridge Height
35' 4"
Type
Attached
Area
293 sq. ft.
Count
1 Cars
Entry Location
Front
Framing Type
Truss
Total Heated Area
2,120 sq. ft.
1st Floor
1,148 sq. ft.
2nd Floor
972 sq. ft.
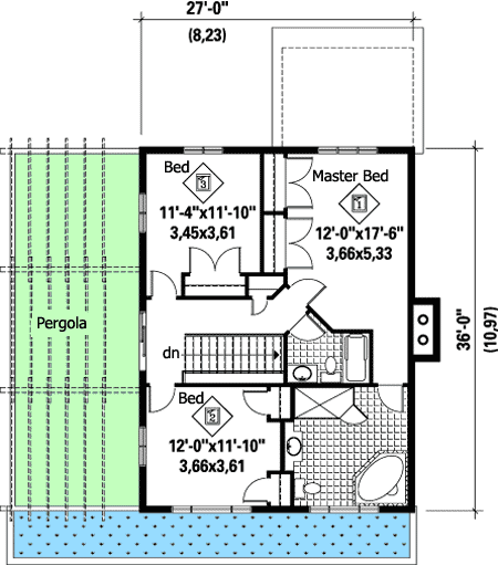
Bedrooms
3
Full bathrooms
2
Half bathrooms
1
Standard Foundations
Basement
Exterior Walls
2x6
Width
40' 0"
Depth
36' 0"
Max Ridge Height
35' 4"
Type
Attached
Area
293 sq. ft.
Count
1 Cars
Entry Location
Front
Framing Type
Truss