


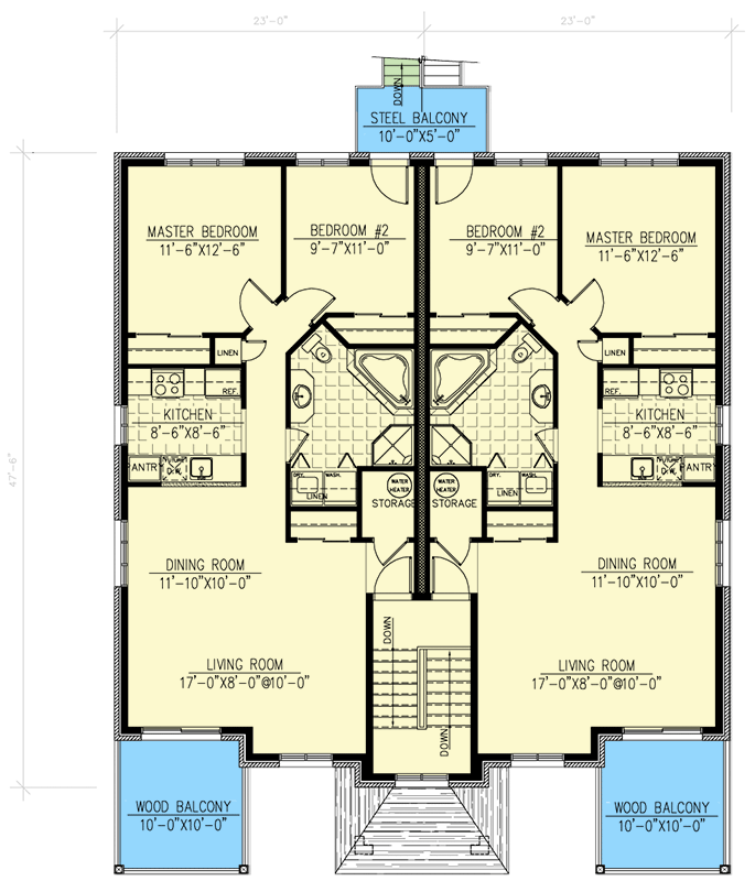
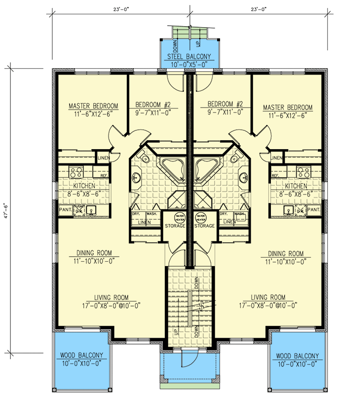
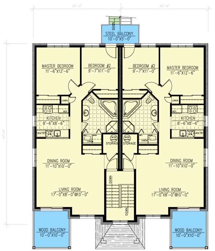
Total Heated Area
5,598 sq. ft.
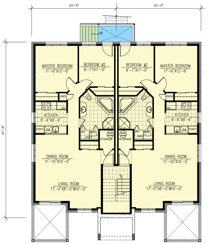
Lower Level
1,866 sq. ft.
1st Floor
1,866 sq. ft.
2nd Floor
1,866 sq. ft.
Bedrooms
10
Full bathrooms
6
Standard Foundations
Basement
Exterior Walls
2x6
Width
46' 0"
Depth
47' 6"
Max Ridge Height
36' 11"
Lower Level
8'
First Floor
8'
Second Floor
8'
Primary Pitch
7 on 12
Secondary Pitch
6 on 12
Framing Type
Truss
Total Heated Area
5,598 sq. ft.
Lower Level
1,866 sq. ft.
1st Floor
1,866 sq. ft.
2nd Floor
1,866 sq. ft.
Bedrooms
10
Full bathrooms
6
Standard Foundations
Basement
Exterior Walls
2x6
Width
46' 0"
Depth
47' 6"
Max Ridge Height
36' 11"
Lower Level
8'
First Floor
8'
Second Floor
8'
Primary Pitch
7 on 12
Secondary Pitch
6 on 12
Framing Type
Truss