
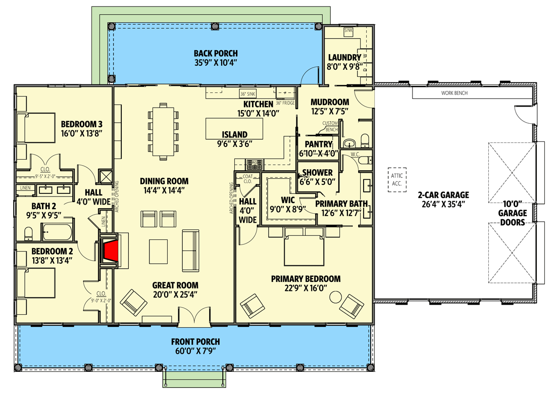
Total Heated Area
2,487 sq. ft.
1st Floor
2,487 sq. ft.
Porch, Front
465 sq. ft.
Porch, Rear
369 sq. ft.
Bedrooms
3
Full bathrooms
2
Half bathrooms
1
Standard Foundations
Crawl
Exterior Walls
2x4
Width
86' 8"
Depth
57' 9"
Max Ridge Height
23' 5"
Type
Attached
Area
960 sq. ft.
Count
2 Cars
Entry Location
Side
First Floor
10' 1"
Primary Pitch
6 on 12
Secondary Pitch
8 on 12
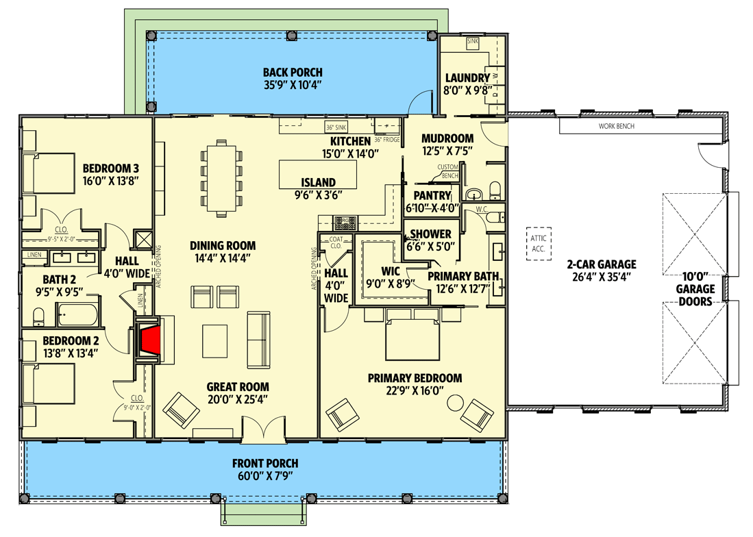
Total Heated Area
2,487 sq. ft.
1st Floor
2,487 sq. ft.
Porch, Front
465 sq. ft.
Porch, Rear
369 sq. ft.
Bedrooms
3
Full bathrooms
2
Half bathrooms
1
Standard Foundations
Crawl
Exterior Walls
2x4
Width
86' 8"
Depth
57' 9"
Max Ridge Height
23' 5"
Type
Attached
Area
960 sq. ft.
Count
2 Cars
Entry Location
Side
First Floor
10' 1"
Primary Pitch
6 on 12
Secondary Pitch
8 on 12