

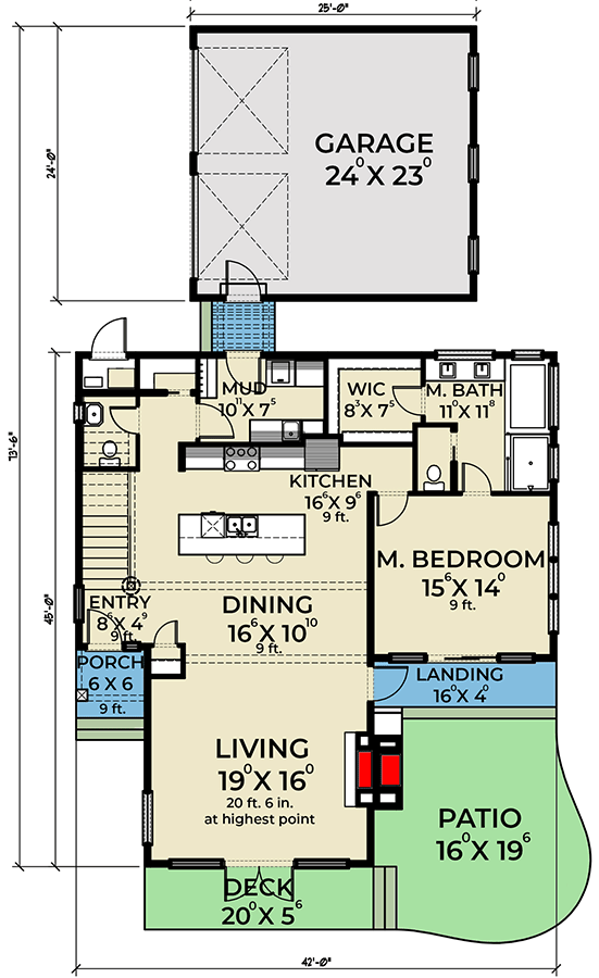
Total Heated Area
2,102 sq. ft.
1st Floor
1,488 sq. ft.
2nd Floor
614 sq. ft.
Porch, Combined
412 sq. ft.
Deck
110 sq. ft.
Bedrooms
2 or 3
Full bathrooms
2
Half bathrooms
1
Standard Foundations
Crawl
Exterior Walls
2x6
Width
42' 0"
Depth
73' 6"
Max Ridge Height
23' 8"
Type
Detached, Standard
Area
600 sq. ft.
Count
2 Cars
Entry Location
Side, Rear
First Floor
9'
Second Floor
7'
Primary Pitch
1.5 on 12
Framing Type
Stick
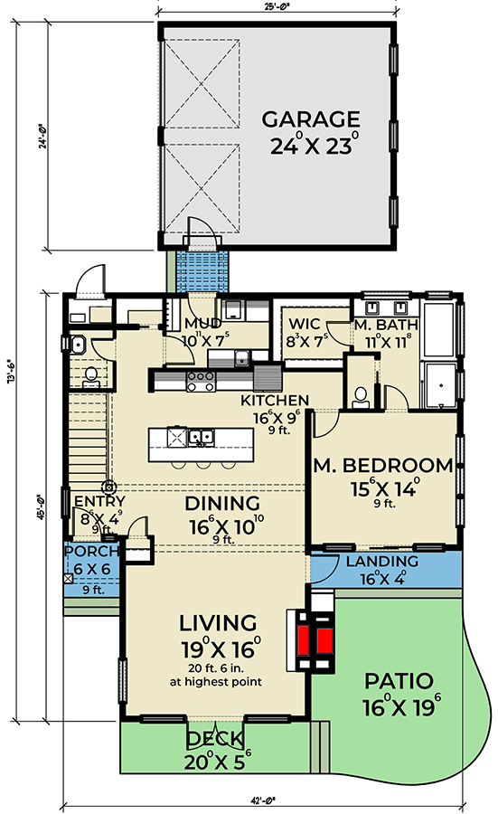
Total Heated Area
2,102 sq. ft.
1st Floor
1,488 sq. ft.
2nd Floor
614 sq. ft.
Porch, Combined
412 sq. ft.
Deck
110 sq. ft.
Bedrooms
2 or 3
Full bathrooms
2
Half bathrooms
1
Standard Foundations
Crawl
Exterior Walls
2x6
Width
42' 0"
Depth
73' 6"
Max Ridge Height
23' 8"
Type
Detached, Standard
Area
600 sq. ft.
Count
2 Cars
Entry Location
Side, Rear
First Floor
9'
Second Floor
7'
Primary Pitch
1.5 on 12
Framing Type
Stick