

Total Heated Area
2,041 sq. ft.
1st Floor
2,041 sq. ft.
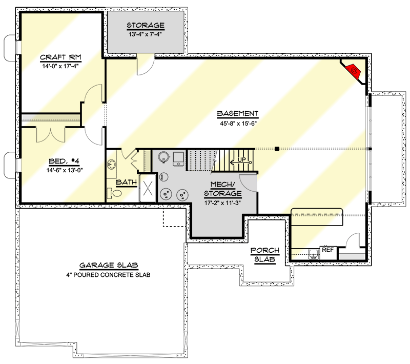
Optional Lower Level
2,041 sq. ft.
Porch, Front
131 sq. ft.
Porch, Rear
112 sq. ft.
Bedrooms
3 or 4
Full bathrooms
2 or 3
Standard Foundations
Basement
Exterior Walls
2x6
Width
62' 0"
Depth
61' 0"
Max Ridge Height
18' 11"
Type
Attached
Area
747 sq. ft.
Count
3 Cars
Entry Location
Front
Lower Level
9'
First Floor
9'
Primary Pitch
6 on 12
Secondary Pitch
6 on 12
Framing Type
Truss
Total Heated Area
2,041 sq. ft.
1st Floor
2,041 sq. ft.
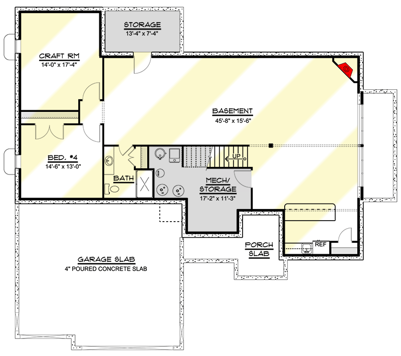
Optional Lower Level
2,041 sq. ft.
Porch, Front
131 sq. ft.
Porch, Rear
112 sq. ft.
Bedrooms
3 or 4
Full bathrooms
2 or 3
Standard Foundations
Basement
Exterior Walls
2x6
Width
62' 0"
Depth
61' 0"
Max Ridge Height
18' 11"
Type
Attached
Area
747 sq. ft.
Count
3 Cars
Entry Location
Front
Lower Level
9'
First Floor
9'
Primary Pitch
6 on 12
Secondary Pitch
6 on 12
Framing Type
Truss