LogoLogo TaglineLogo Tagline
Loading...
Plan 23445JD

Split Level Home with Rec Room

Heated S.F.
1,885
Beds
3
Baths
2.5
Stories
1
Cars
2

Floor Plan

Plan 23445JD

Main Level
Main Level
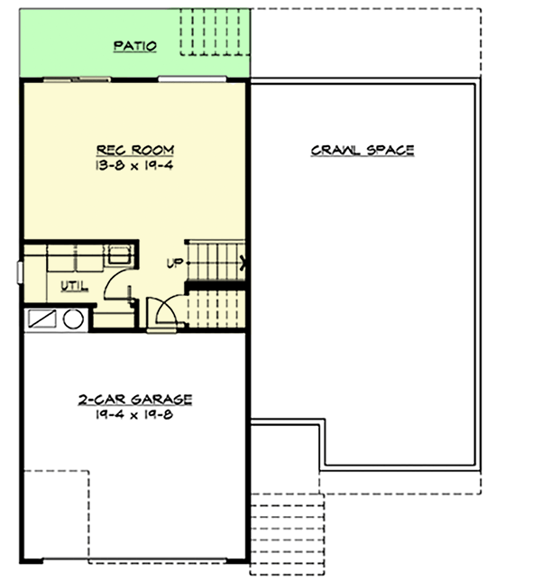
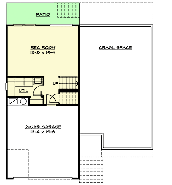
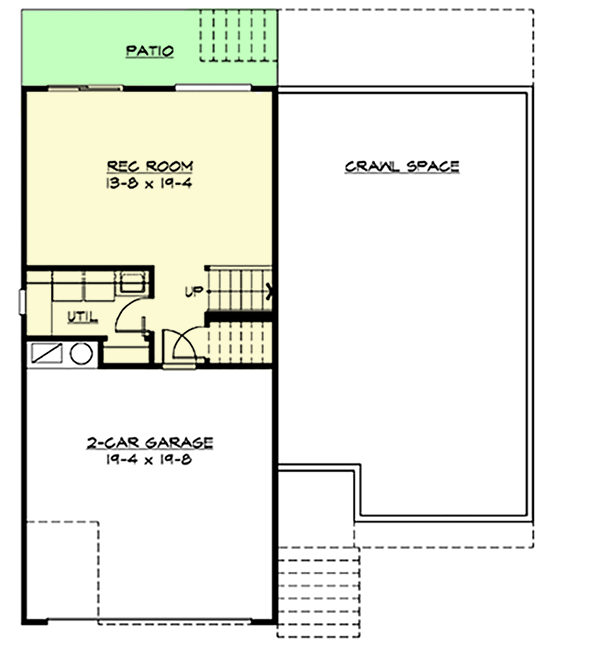
Basement
Basement

Plan 23445JD

M-F 9am-5pm EST |

1-203-761-8500

Main Level

Plan 23445JD: Split Level Home with Rec Room - Floor Plan - Main Level

Basement

Plan 23445JD: Split Level Home with Rec Room - Floor Plan - Basement

Plan Details

  • Only 40' wide, this split-level home plan has a terrific rec room on the ground level.
  • The main living area has an open dining/living room with the kitchen and informal nook close by.
  • Step up to the bedroom level with its loft area and a big vaulted master suite.
  • Related Plans: house plan 23444JD offers less square footage (1,735 sq. ft.) and a slightly different kitchen layout.
  • NOTE: Additional fees apply when building in the State of Washington. Contact us for more information.

What's Included

  • Cover Sheet - The cover sheet includes the general notes and building code information, design standards and structural materials specifications required to construct your home.
  • Schedule Sheet - The schedule sheet includes the roof and foundation ventilation schedules, insulation and vapor barrier specifications, and exhaust fan ventilation schedule.
  • Detail Sheet - The detail sheet shows building components at large scale as required to explain construction of footings, foundation walls, concrete slabs, framed floors and walls, posts, beams, insulation, eaves, roofs, vents, stairs, skylights, and connections.
  • Foundation Plan Sheet - The foundation plan sheet shows the layout of the crawl space, walk-out basement or slab foundation. The foundation plan includes all necessary notes, dimensions, concrete walls, footing pads, posts, beams, bearing walls, crawlspace vents, footing schedule, steel reinforcing, and structural information. If you require a different foundation type, please contact us for modifications to your plan.
  • Floor Plan Sheet - Floor plans are horizontal cuts through each floor level of the home, usually at 5' above the floor. The floor plan shows the location of interior and exterior walls, doors, windows, stairs, closets, cabinets, flooring, appliances, plumbing fixtures, fireplaces, posts and beams. Floor plans also indicate vaulted, coffered, or box beam ceilings, cased openings and areas with ceiling soffits.
  • Roof Framing Plan Sheet - The roof framing plan shows the geometry of the hips, ridges, valleys, dormers, roof pitches, wall and plate heights, and overhangs. The plan also shows all individual roof framing members, trusses, rafters, beams, skylights, roof vents, gutters, downspouts, skylights, bearing walls under framing members, and point loads.
  • Elevation Sheet - Exterior elevations show all four sides of the house, describing the roofing, siding, and trim materials, doors, windows, roof pitches, skylights, gutters, chimneys, wall heights, finish grade and overall building height. 
  • Building Section Sheet - Building sections are vertical cuts through the house from the roof to the foundation. The sections illustrate the construction sequence from bottom to top starting with excavation, proceeding up through the foundation, drainage, wall and floor framing, stair framing, roof framing, windows, doors, venting, and exterior and interior finishes. Wall plate heights for each floor are also delineated.
View Sample Plan

What's Not Included

  • Electrical Plan - handled by your subcontractor to match your individual needs
  • Architectural or Engineering Stamp - handled locally if required
  • Site Plan - handled locally when required
  • Mechanical Drawings (location of heating and air equipment and duct work) - your subcontractors handle this
  • Plumbing Drawings (drawings showing the actual plumbing pipe sizes and locations) - your subcontractors handle this
  • Energy calculations - handled locally when required

Starting at

Loading...
Price Match Guarantee
What's included?

FORMAT & LICENSE

Choose an option

$0

Not sure what to choose?

Pointer link icon

FOUNDATION

Choose an option

+$0

OPTIONS

Choose Additional Options

+$0

Loading...

Modify this Plan

Receive a free modification quote within 3 business days.

Loading...

Start with a Cost Report

Calculate the cost to build & furnish your home.

Loading...
Loading...

Square Footage Breakdown

Total Heated Area

1,885 sq. ft.

Lower Level

430 sq. ft.

1st Floor

1,455 sq. ft.

Beds/Baths

Bedrooms

3

Full bathrooms

2

Half bathrooms

1

Foundation Type

Standard Foundations

Crawl

Exterior Walls

Exterior Walls

2x6

Dimensions

Width

40' 0"

Depth

42' 0"

Max Ridge Height

23' 0"

Garage

Type

Attached

Area

410 sq. ft.

Count

2 Cars

Entry Location

Front

Ceiling Heights

Lower Level

8'

First Floor

8'

Roof Details

Primary Pitch

7 on 12

Framing Type

Truss

Special Features

Bedrooms - Clustered

Square Footage Breakdown

Total Heated Area

1,885 sq. ft.

Lower Level

430 sq. ft.

1st Floor

1,455 sq. ft.

Beds/Baths

Bedrooms

3

Full bathrooms

2

Half bathrooms

1

Foundation Type

Standard Foundations

Crawl

Exterior Walls

Exterior Walls

2x6

Dimensions

Width

40' 0"

Depth

42' 0"

Max Ridge Height

23' 0"

Garage

Type

Attached

Area

410 sq. ft.

Count

2 Cars

Entry Location

Front

Ceiling Heights

Lower Level

8'

First Floor

8'

Roof Details

Primary Pitch

7 on 12

Framing Type

Truss

* Please note that all sale prices and promotions featured on our website are subject to change without prior notice. While we strive to provide accurate and up-to-date information, occasional discrepancies may occur due to factors beyond our control. We encourage you to verify all details, including pricing and availability, before making any purchase. Exclusions or restrictions may apply to specific promotions. We reserve the right to modify or cancel any sale at our discretion. Thank you for your understanding and happy shopping!Let's go back to the top.