


Total Heated Area
3,929 sq. ft.
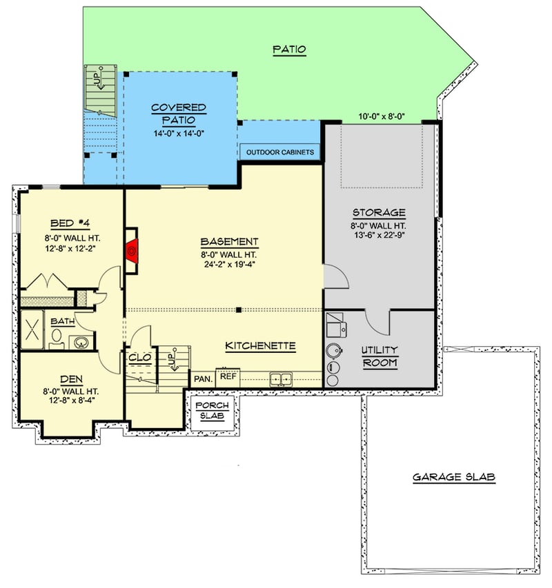
Lower Level
1,641 sq. ft.
1st Floor
1,641 sq. ft.
2nd Floor
647 sq. ft.
Bedrooms
3
Full bathrooms
2
Half bathrooms
1
Standard Foundations
Walkout
Exterior Walls
2x6
Width
65' 0"
Depth
70' 0"
Max Ridge Height
23' 9"
Type
Standard
Area
561 sq. ft.
Count
2 Cars
Entry Location
Front
Lower Level
9'
First Floor
8'
Second Floor
8'
Primary Pitch
12 on 12
Secondary Pitch
4 on 12
Framing Type
Truss
Total Heated Area
3,929 sq. ft.
Lower Level
1,641 sq. ft.
1st Floor
1,641 sq. ft.
2nd Floor
647 sq. ft.
Bedrooms
3
Full bathrooms
2
Half bathrooms
1
Standard Foundations
Walkout
Exterior Walls
2x6
Width
65' 0"
Depth
70' 0"
Max Ridge Height
23' 9"
Type
Standard
Area
561 sq. ft.
Count
2 Cars
Entry Location
Front
Lower Level
9'
First Floor
8'
Second Floor
8'
Primary Pitch
12 on 12
Secondary Pitch
4 on 12
Framing Type
Truss