


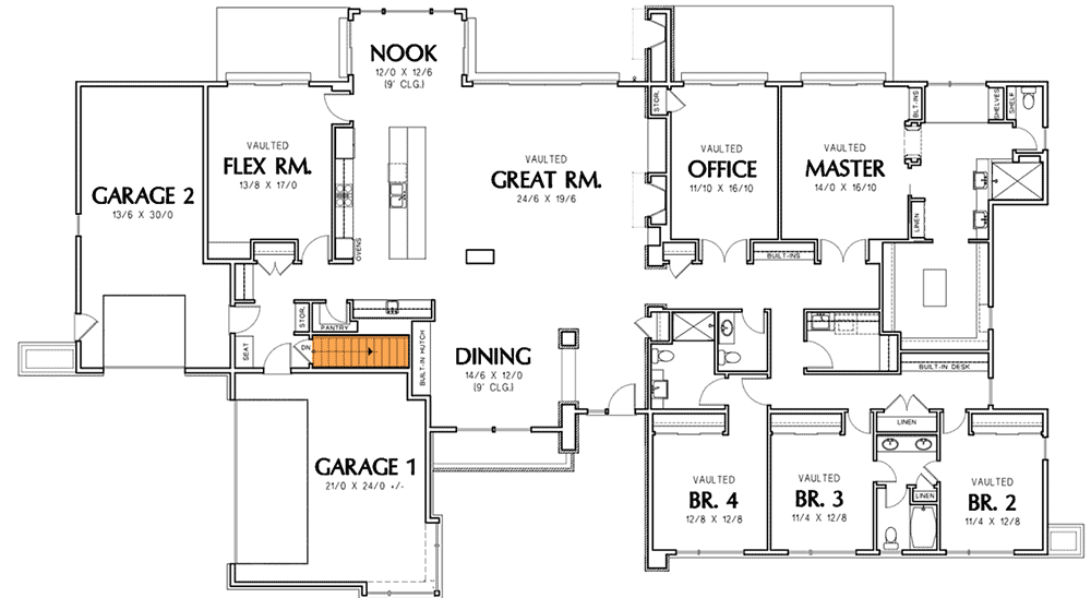
Total Heated Area
3,938 sq. ft.
1st Floor
3,938 sq. ft.
Porch, Rear
160 sq. ft.
Bedrooms
4
Full bathrooms
3
Half bathrooms
1
Standard Foundations
Crawl, Slab
Exterior Walls
2x6
Width
107' 0"
Depth
64' 6"
Max Ridge Height
16' 4"
Type
Attached
Area
1008 sq. ft.
Count
3 Cars
Entry Location
Front, Side
First Floor
9'
Framing Type
Stick
Total Heated Area
3,938 sq. ft.
1st Floor
3,938 sq. ft.
Porch, Rear
160 sq. ft.
Bedrooms
4
Full bathrooms
3
Half bathrooms
1
Standard Foundations
Crawl, Slab
Exterior Walls
2x6
Width
107' 0"
Depth
64' 6"
Max Ridge Height
16' 4"
Type
Attached
Area
1008 sq. ft.
Count
3 Cars
Entry Location
Front, Side
First Floor
9'
Framing Type
Stick