LogoLogo TaglineLogo Tagline
Loading...
Plan 64449SC

Stylish Farmhouse Ranch House Plan

Heated S.F.
2,632
Beds
2 - 4
Baths
2 - 3
Stories
1
Cars
3

Floor Plan

Plan 64449SC

Main Level
Main Level
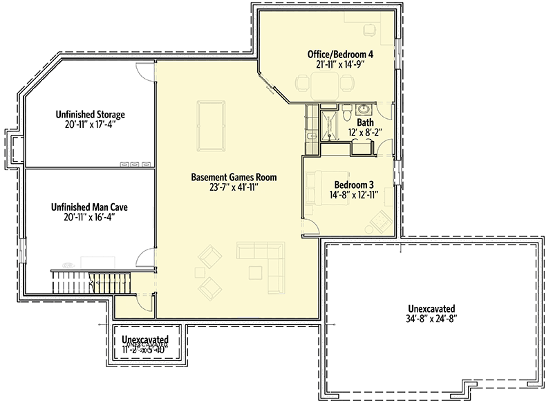
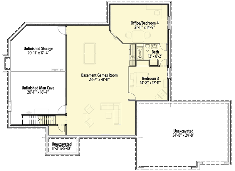
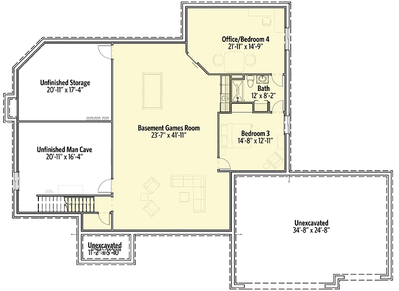
Lower Level
Lower Level

Plan 64449SC

M-F 9am-5pm EST |

1-203-761-8500

Main Level

Plan 64449SC: Stylish Farmhouse Ranch House Plan - Floor Plan - Main Level - Country, Farmhouse, Ranch, Traditional

Lower Level

Plan 64449SC: Stylish Farmhouse Ranch House Plan - Floor Plan - Lower Level - Country, Farmhouse, Ranch, Traditional

Plan Details

  • From the front, this stylish Farmhouse plan appears to be one story but the home comes with a fully finished lower level that bumps the total living area up to 4526 square feet.
  • The first floor vaulted living area is one massive big space with a large viewing deck/patio along the back.
  • A wet bar stands ready to help you entertain both indoors and out.
  • Sliding glass doors in the huge master suite lead out to the patio.
  • Even the laundry room is huge with the added benefit of an open shower for rinsing off sand and dirt or even pets.
  • You can have two bedrooms on each floor or two bedrooms and two offices.
  • The lower level stands ready for you to add a man-cave too!
  • NOTE: Plans cannot be built within a 50 mile radius of Fort Collins, CO.

What's Included

  • Cover Sheet - project statistics, including square footages, 3D images (typically), general notes and drawings sheet index.
  • Foundation/basement plan - showing room/wall layout, beams, posts and joist direction, and often electrical outlets, switches and light locations.
  • Main Level Plan - floor plan rooms and walls dimensioned, window and door sizes noted, plumbing, millwork locations and other general notes.
  • Upper Level Plan (if needed) - same information as Main Level.
  • Roof Plan - layout with pitch markers, dimensions and notes.
  • Main Level Electrical Plan - electrical outlets, switches and light locations shown.
  • Upper Level Electrical Plan (if needed) - electrical outlets, switches and light locations shown.
  • Exterior Elevations - Elevations of the Front and Right side with notes, dimensions and material designations.
  • Exterior Elevations - Elevations of the Back and Left side with notes, dimensions and material designations.
  • Sections and details - One or more building sections to show vertical relationships and construction plate heights, details as needed.
  • Interior Elevations and Details - mostly millwork, fireplace and other items that need additional explanation, details as needed.
View Sample Plan

What's Not Included

  • Architectural or Engineering Stamp - handled locally if required
  • Site Plan - handled locally when required
  • Mechanical Drawings (location of heating and air equipment and duct work) - your subcontractors handle this
  • Plumbing Drawings (drawings showing the actual plumbing pipe sizes and locations) - your subcontractors handle this
  • Energy calculations - handled locally when required

Starting at
Loading...
What's included?
Plan Set
Select...

Foundation
Select...

Options
Optional Add-Ons
+$0

Loading...
Price Match Guarantee
Cost to Build Report
Still deciding? Calculate the cost to build this house in your area.
Loading...
Customize This Plan
Need to make changes? We will get you a free price quote within 1 to 3 business days.
Cost to Furnish Report
Instant room-by-room estimates for your entire furniture & home decor plan, matched to your budget.
Loading...

Square Footage Breakdown

Total Heated Area

2,632 sq. ft.

1st Floor

2,632 sq. ft.

Basement Unfinished

781 sq. ft.

Optional Lower Level

2,675 sq. ft.

Porch, Rear

252 sq. ft.

Entry

72 sq. ft.

Covered Patio

236 sq. ft.

Beds/Baths

Bedrooms

2, 3, or 4

Full bathrooms

2 or 3

Foundation Type

Standard Foundations

Walkout

Exterior Walls

Exterior Walls

2x6

Dimensions

Width

85' 0"

Depth

64' 0"

Max Ridge Height

21' 10"

Garage

Type

Attached

Area

912 sq. ft.

Count

3 Cars

Entry Location

Front

Ceiling Heights

Lower Level

9'

First Floor

10'

Roof Details

Primary Pitch

6 on 12

Framing Type

Stick And Truss

Architectural Style

Country

Plan Collections

Square Footage Breakdown

Total Heated Area

2,632 sq. ft.

1st Floor

2,632 sq. ft.

Basement Unfinished

781 sq. ft.

Optional Lower Level

2,675 sq. ft.

Porch, Rear

252 sq. ft.

Entry

72 sq. ft.

Covered Patio

236 sq. ft.

Beds/Baths

Bedrooms

2, 3, or 4

Full bathrooms

2 or 3

Foundation Type

Standard Foundations

Walkout

Exterior Walls

Exterior Walls

2x6

Dimensions

Width

85' 0"

Depth

64' 0"

Max Ridge Height

21' 10"

Garage

Type

Attached

Area

912 sq. ft.

Count

3 Cars

Entry Location

Front

Ceiling Heights

Lower Level

9'

First Floor

10'

Roof Details

Primary Pitch

6 on 12

Framing Type

Stick And Truss

Plan Collections

* Please note that all sale prices and promotions featured on our website are subject to change without prior notice. While we strive to provide accurate and up-to-date information, occasional discrepancies may occur due to factors beyond our control. We encourage you to verify all details, including pricing and availability, before making any purchase. Exclusions or restrictions may apply to specific promotions. We reserve the right to modify or cancel any sale at our discretion. Thank you for your understanding and happy shopping!Let's go back to the top.