

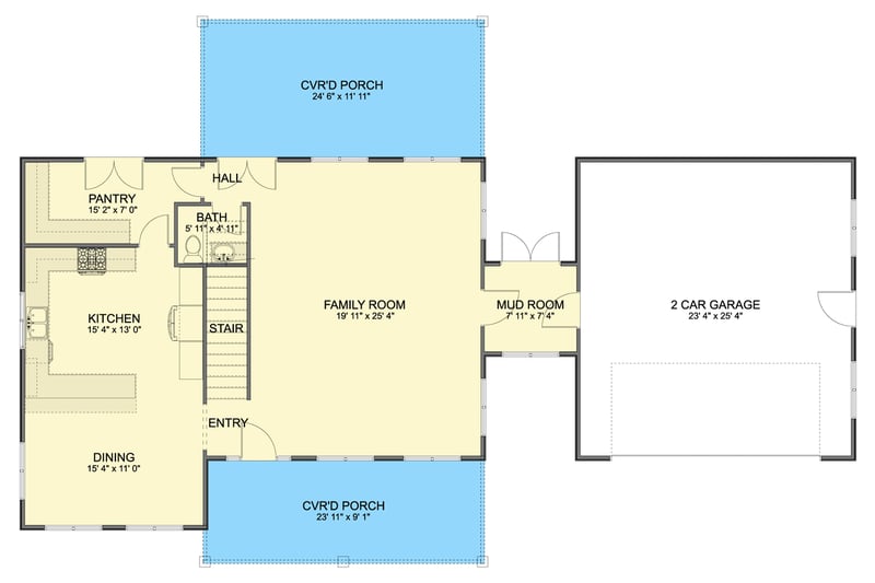
Total Heated Area
2,386 sq. ft.
1st Floor
1,202 sq. ft.
2nd Floor
1,184 sq. ft.
Bedrooms
3
Full bathrooms
2
Half bathrooms
1
Standard Foundations
Slab
Exterior Walls
2x4
Optional Type(s)
2x6
Width
72' 0"
Depth
47' 0"
Max Ridge Height
29' 11"
Type
Standard
Area
624 sq. ft.
Count
2 Cars
Entry Location
Front
First Floor
10'
Second Floor
9'
Room
Ceiling Type
Height
Great Room
15' 0''
Primary Pitch
8 on 12
Secondary Pitch
5 on 12
Framing Type
Truss
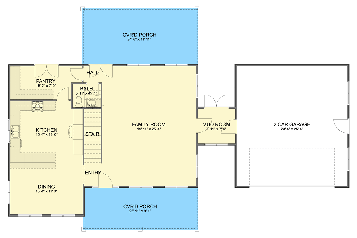
Total Heated Area
2,386 sq. ft.
1st Floor
1,202 sq. ft.
2nd Floor
1,184 sq. ft.
Bedrooms
3
Full bathrooms
2
Half bathrooms
1
Standard Foundations
Slab
Exterior Walls
2x4
Optional Type(s)
2x6
Width
72' 0"
Depth
47' 0"
Max Ridge Height
29' 11"
Type
Standard
Area
624 sq. ft.
Count
2 Cars
Entry Location
Front
First Floor
10'
Second Floor
9'
Room
Ceiling Type
Height
Great Room
15' 0''
Primary Pitch
8 on 12
Secondary Pitch
5 on 12
Framing Type
Truss