

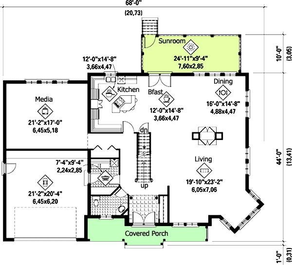
Total Heated Area
3,751 sq. ft.
1st Floor
2,077 sq. ft.
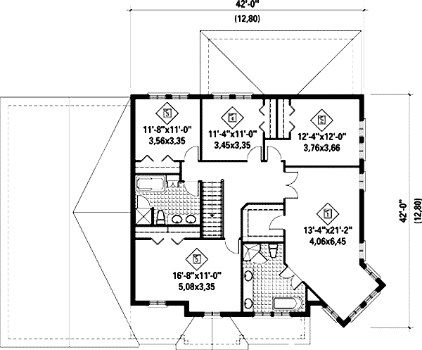
2nd Floor
1,674 sq. ft.
Bedrooms
5
Full bathrooms
2
Half bathrooms
1
Standard Foundations
Basement
Exterior Walls
2x6
Width
68' 0"
Depth
44' 0"
Max Ridge Height
36' 8"
Type
Attached
Area
521 sq. ft.
Count
2 Cars
Entry Location
Front
Framing Type
Truss
Total Heated Area
3,751 sq. ft.
1st Floor
2,077 sq. ft.
2nd Floor
1,674 sq. ft.
Bedrooms
5
Full bathrooms
2
Half bathrooms
1
Standard Foundations
Basement
Exterior Walls
2x6
Width
68' 0"
Depth
44' 0"
Max Ridge Height
36' 8"
Type
Attached
Area
521 sq. ft.
Count
2 Cars
Entry Location
Front
Framing Type
Truss