
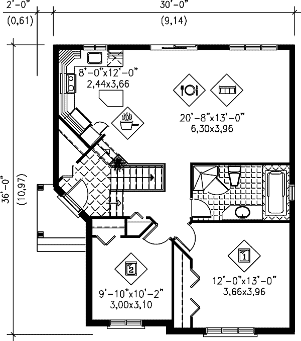
Total Heated Area
1,006 sq. ft.
1st Floor
1,006 sq. ft.
Bedrooms
2
Full bathrooms
1
Standard Foundations
Basement
Exterior Walls
2x6
Width
30' 0"
Depth
36' 0"
Max Ridge Height
25' 3"
First Floor
8'
Primary Pitch
8 on 12
Framing Type
Truss
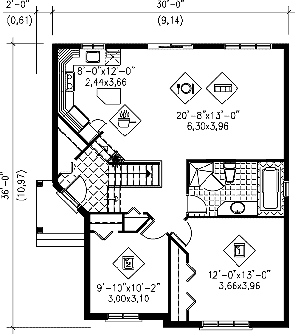
Total Heated Area
1,006 sq. ft.
1st Floor
1,006 sq. ft.
Bedrooms
2
Full bathrooms
1
Standard Foundations
Basement
Exterior Walls
2x6
Width
30' 0"
Depth
36' 0"
Max Ridge Height
25' 3"
First Floor
8'
Primary Pitch
8 on 12
Framing Type
Truss