



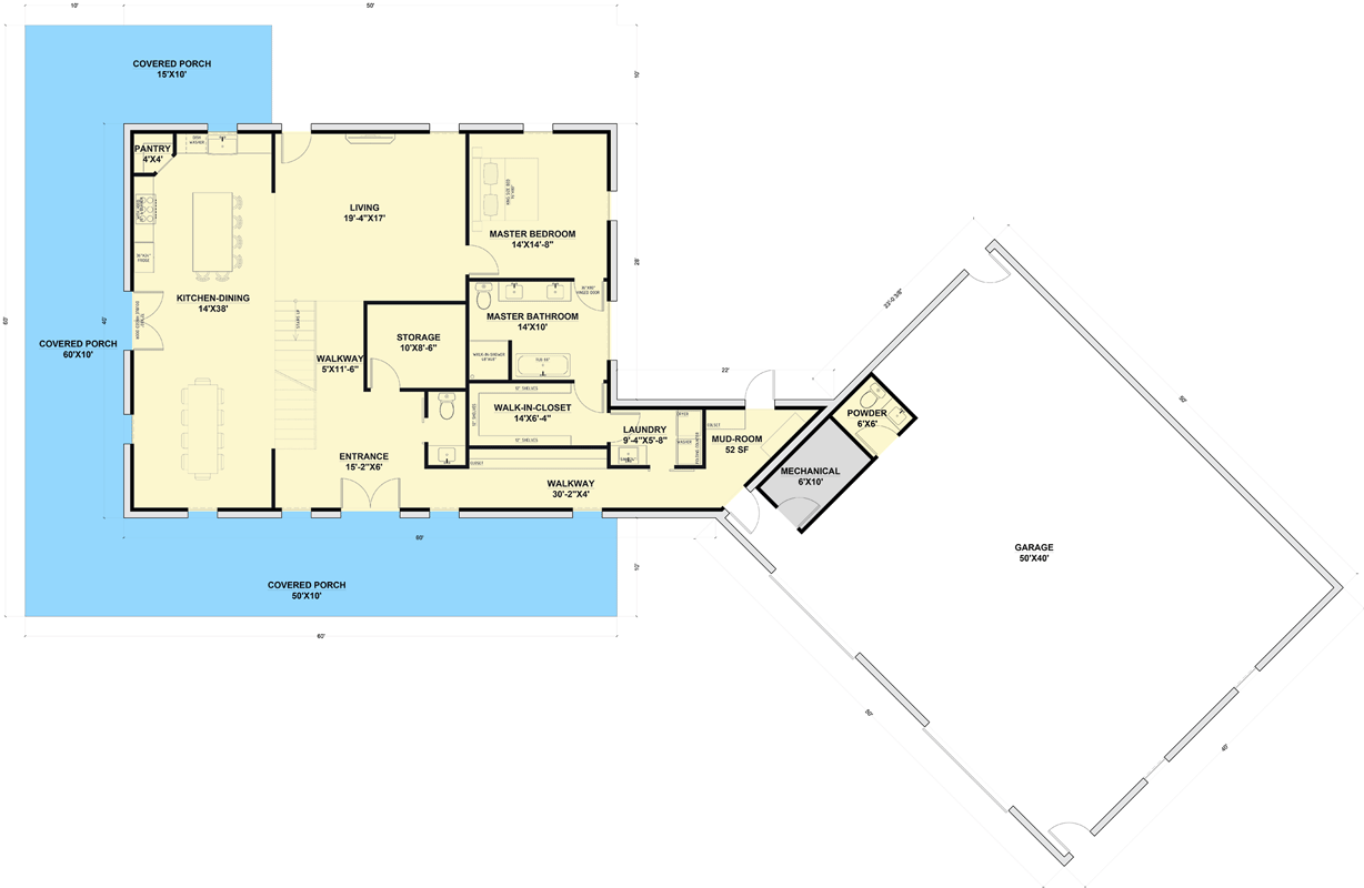
Total Heated Area
3,672 sq. ft.
1st Floor
2,000 sq. ft.
2nd Floor
1,672 sq. ft.
Porch, Combined
1,250 sq. ft.
Bedrooms
5
Full bathrooms
3
Half bathrooms
2
Standard Foundations
Slab
Exterior Walls
Metal or PEMB
Optional Type(s)
2x6
Width
60' 0"
Depth
40' 0"
Max Ridge Height
30' 0"
Type
Attached
Area
2000 sq. ft.
Count
2 Cars
Entry Location
Front, Courtyard
First Floor
9'
Primary Pitch
6 on 12
Framing Type
Steel
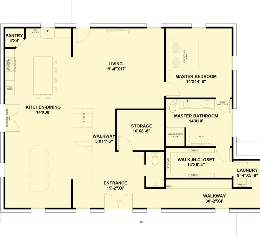
Total Heated Area
3,672 sq. ft.
1st Floor
2,000 sq. ft.
2nd Floor
1,672 sq. ft.
Porch, Combined
1,250 sq. ft.
Bedrooms
5
Full bathrooms
3
Half bathrooms
2
Standard Foundations
Slab
Exterior Walls
Metal or PEMB
Optional Type(s)
2x6
Width
60' 0"
Depth
40' 0"
Max Ridge Height
30' 0"
Type
Attached
Area
2000 sq. ft.
Count
2 Cars
Entry Location
Front, Courtyard
First Floor
9'
Primary Pitch
6 on 12
Framing Type
Steel