

Total Heated Area
3,628 sq. ft.
1st Floor
2,220 sq. ft.
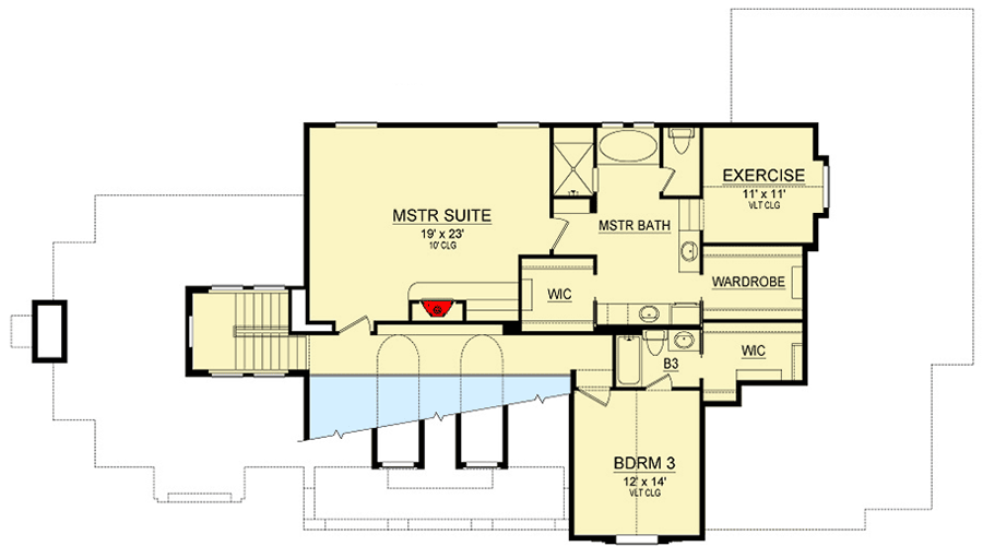
2nd Floor
1,408 sq. ft.
Bedrooms
3
Full bathrooms
3
Half bathrooms
1
Standard Foundations
Slab
Exterior Walls
2x6
Width
92' 0"
Depth
52' 0"
Max Ridge Height
27' 0"
Type
Attached
Area
793 sq. ft.
Count
3 Cars
Entry Location
Side
First Floor
10'
Second Floor
10'
Total Heated Area
3,628 sq. ft.
1st Floor
2,220 sq. ft.
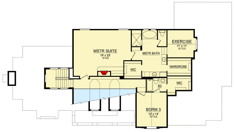
2nd Floor
1,408 sq. ft.
Bedrooms
3
Full bathrooms
3
Half bathrooms
1
Standard Foundations
Slab
Exterior Walls
2x6
Width
92' 0"
Depth
52' 0"
Max Ridge Height
27' 0"
Type
Attached
Area
793 sq. ft.
Count
3 Cars
Entry Location
Side
First Floor
10'
Second Floor
10'