LogoLogo TaglineLogo Tagline
Loading...
Plan 90217PD

Victorian with Wrap-Around Porch

Heated S.F.
1,360
Beds
3
Baths
1.5
Stories
2

Floor Plan

Plan 90217PD

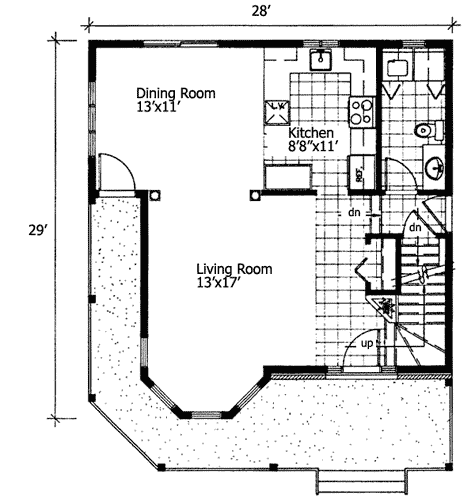
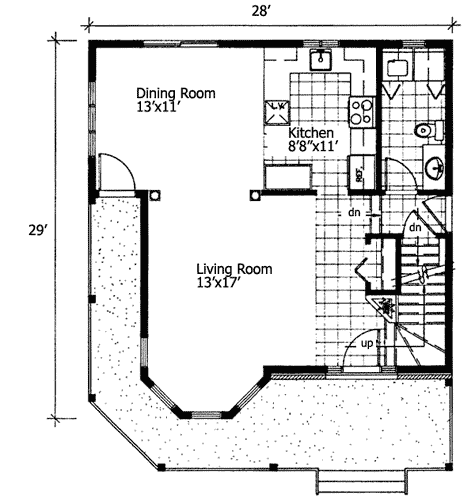
Main Level
Main Level
2nd Floor
2nd Floor

Plan 90217PD

M-F 9am-5pm EST |

1-203-761-8500

Main Level

Plan 90217PD: Victorian with Wrap-Around Porch - Floor Plan - Main Level - Cottage, Country, Victorian

2nd Floor

Plan 90217PD: Victorian with Wrap-Around Porch - Floor Plan - 2nd Floor - Cottage, Country, Victorian

Plan Details

  • A charming wrap-around porch adorns this Victorian home plan designed for a narrow lot.
  • An open floor plan makes the most of the inside space.
  • The master suite has a delightful reading nook set in a turret and a big walk-in closet.
  • Two family bedrooms and a hall bath complete this level.

What's Included

Please note this plan is designed to the National Building Code of Canada.  
  • Elevations
  • Lower level plan -- including floor above structure, concrete level and thickness, electrical layout
  • Main floor plan w/ structure for the roof above, electrical layout
  • Building section
  • Construction details
  • Suggested lighting plan

What's Not Included

  • Architectural or Engineering Stamp - handled locally if required
  • Site Plan - handled locally when required
  • Mechanical Drawings (location of heating and air equipment and duct work) - your subcontractors handle this
  • Plumbing Drawings (drawings showing the actual plumbing pipe sizes and locations) - your subcontractors handle this
  • Framing - layouts with beam sizes and locations
  • Energy calculations - handled locally when required

Starting at

Loading...
Price Match Guarantee
What's included?

FORMAT & LICENSE

Choose an option

$0

Not sure what to choose?

Pointer link icon

FOUNDATION

Choose an option

+$0

OPTIONS

Choose Additional Options

+$0

Loading...

Modify this Plan

Receive a free modification quote within 3 business days.

Loading...

Start with a Cost Report

Calculate the cost to build & furnish your home.

Loading...
Loading...

Square Footage Breakdown

Total Heated Area

1,360 sq. ft.

1st Floor

693 sq. ft.

2nd Floor

667 sq. ft.

Basement Unfinished

693 sq. ft.

Beds/Baths

Bedrooms

3

Full bathrooms

1

Half bathrooms

1

Foundation Type

Standard Foundations

Basement

Exterior Walls

Exterior Walls

2x6

Dimensions

Width

28' 0"

Depth

29' 0"

Max Ridge Height

32' 10"

Ceiling Heights

First Floor

8'

Second Floor

8'

Roof Details

Framing Type

Truss

Architectural Style

Cottage

Square Footage Breakdown

Total Heated Area

1,360 sq. ft.

1st Floor

693 sq. ft.

2nd Floor

667 sq. ft.

Basement Unfinished

693 sq. ft.

Beds/Baths

Bedrooms

3

Full bathrooms

1

Half bathrooms

1

Foundation Type

Standard Foundations

Basement

Exterior Walls

Exterior Walls

2x6

Dimensions

Width

28' 0"

Depth

29' 0"

Max Ridge Height

32' 10"

Ceiling Heights

First Floor

8'

Second Floor

8'

Roof Details

Framing Type

Truss

Architectural Style

* Please note that all sale prices and promotions featured on our website are subject to change without prior notice. While we strive to provide accurate and up-to-date information, occasional discrepancies may occur due to factors beyond our control. We encourage you to verify all details, including pricing and availability, before making any purchase. Exclusions or restrictions may apply to specific promotions. We reserve the right to modify or cancel any sale at our discretion. Thank you for your understanding and happy shopping!Let's go back to the top.